

Störmer Immobilien
Herr/Frau Andreas Störmer
036 ···
Nr. anzeigenPreise & Kosten
Provision für Käufer
4.000 € zzgl. gesetzl. MwSt
Lage
Die Wohnung befindet sich in zentraler Lage von Schönbrunn nahe der Hauptstraße. Einrichtungen des täglichen Bedarfs sowie das Ortszentrum sind in wenigen Minuten erreichbar. In unmittelbarer Nähe befinden sich zudem ein Kindergarten und das Schwimmbad. Das Grundstück des Mehrfamilienhauses grenzt an waldnahe Umgebung, die...
Die Wohnung
Bezug
sofort
Wohnanlage
Energie & Heizung
Warum sehe ich diese Anzeige? – Du siehst diese Anzeige basierend auf Ihrer Navigation auf unserer Website und den Suchkriterien, die du verwendet hast.
Weitere Energiedaten
Energieträger
Öl
Heizungsart
Zentralheizung
Details
Objektbeschreibung
- ruhige Lage in Zentrumsnähe
- umgeben von Natur und Wald
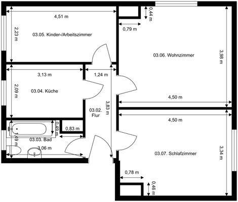
- attraktive Wohnmöglichkeit durch 3. verschieden nutzbares Zimmer
- dazugehöriger Keller- und Dachbodenanteil bieten Stau- und Lagerraum
- separates Gartengrundstück (ca. 1.200 m²) mit Schuppen zusätzlich erwerbbar
Ausstattung
Mitten im Herzen von Schönbrunn befindet sich dieses attraktive, freistehende Mehrfamilienhaus in ruhiger Lage. Die hervorragende Infrastruktur ermöglicht kurze Wege zu allem, was man im Alltag braucht: Ärzte, Grundschule und Kindergarten, Supermarkt, Tankstelle oder auch das Terrassenbad sind in wenigen Minuten zu Fuß oder...
Weitere Informationen
Sonstiges
Info: Anzahl Etagen: 4
Diese helle und freundliche Eigentumswohnung im Obergeschoss überzeugt durch ihre flexible Raumaufteilung und vielfältigen Nutzungsmöglichkeiten. Das dritte Zimmer eignet sich ideal als Arbeits-, Kinder- oder Gästezimmer und macht die Wohnung sowohl für Singles und Paare als auch für...
Anbieter der Immobilie

Störmer Immobilien
Dorfstr. 20, 98673 Eisfeld OT Hirschendorf

Online-ID: 2nccp5b
Referenznummer: ASI 1469
Finde Angebote wie dieses
Hier geht es zu unserem Impressum, den Allgemeinen Geschäftsbedingungen, den Hinweisen zum Datenschutz und nutzungsbasierter Online-Werbung.