

Betz Immobilien GmbH
Herr Oliver Betz
+49 ···
Nr. anzeigenPreise & Kosten
Provision für Käufer
provisionsfrei
Lage
Bamlach ist ein Teilort der charmanten Gemeinde Bad Bellingen im Markgräfler-land. Bad Bellingen ist bekannt für ihre Thermalquellen und die malerische Um-gebung. Die Lage bietet eine gute Anbindung an die umliegenden Städte wie Lörrach und Freiburg sowie an die Schweiz und Frankreich. Einkaufsmöglichkeiten für den täglichen...
Das Haus
Kategorie
Doppelhaushälfte
Baujahr
2013
Energie & Heizung
Warum sehe ich diese Anzeige? – Du siehst diese Anzeige basierend auf Ihrer Navigation auf unserer Website und den Suchkriterien, die du verwendet hast.
Energieausweistyp
Verbrauchsausweis
Gebäudetyp
Wohngebäude
Wesentliche Energieträger
ERDGAS_LEICHT
Gültigkeit
bis 22.01.2036
Effizienzklasse
A
Endenergieverbrauch
37,22 kWh/(m²·a)
Weitere Energiedaten
Energieträger
Gas, Solar
Heizungsart
Fußbodenheizung, Zentralheizung
Details
Objektbeschreibung
Provisionsfrei - Diese außergewöhnliche Doppelhaushälfte vereint Ruhe, Natur und Flexibilität in einer besonders attraktiven Form. Der traumhafte Fernblick auf die Rheinebene bis zu den Vogesen ist das Herzstück dieser Immobilie und macht jeden Tag zu etwas Besonderem. Vor allem die eindrucksvollen Sonnenuntergänge schaffen...
Ausstattung
- Böden: Fliesen in Holzoptik Wohn- und Schlafbereich Fliesen im Badezimmer
- Fenster: Kunststoff (3-fachVerglasung) mit elektrischen Jalousien
- Wände: Edelputz
- Türen: Holztüren weiß
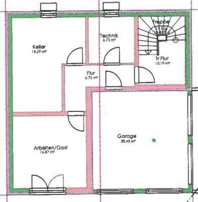
Garage/Stellplatz: Doppelgarage mit elektrisch betriebenem Tor und weiterer überdachter Stellplatz
Heizung...
Preisinformation
2 Stellplätze
2 Garagenstellplätze
Weitere Informationen
Sonstiges
- Nebenkosten (Gas, Strom, Wasser, Grundsteuer, Gebäudeversicherung) monatlich rund EUR 250,00
- Kurzfristig Bezugsbereit (nach Absprache)
Stichworte
vermietbare Fläche: 146,00 m², Anzahl der Schlafzimmer: 3, Anzahl der Badezimmer: 3, Anzahl Balkone: 2, Anzahl Terrassen: 1, 3...
Anbieter der Immobilie
Betz Immobilien GmbH
Marktplatz 7, 79539 Lörrach

Online-ID: 2ncc55t
Referenznummer: BI-OB-26-135
Finde Angebote wie dieses
Hier geht es zu unserem Impressum, den Allgemeinen Geschäftsbedingungen, den Hinweisen zum Datenschutz und nutzungsbasierter Online-Werbung.