
Gebler Immobilien GmbH & Co. KG
Frau Yvonne Vogtland
+49 ···
Nr. anzeigenPreise & Kosten
Provision für Käufer
4,76 % inkl. MwSt.
Lage
Das Wohn- und Geschäftshaus befindet sich in einem belebten Stadtteil von Hagen, der für seine gute Infrastruktur und vielfältigen Freizeitmöglichkeiten bekannt ist. In unmittelbarer Nähe finden sich zahlreiche Geschäfte, Restaurants und Cafés, die für eine lebendige Atmosphäre sorgen. Auch Schulen, Kindergärten und...
Das Haus
Kategorie
Mehrfamilienhaus
Baujahr
1980
Energie & Heizung
Warum sehe ich diese Anzeige? – Du siehst diese Anzeige basierend auf Ihrer Navigation auf unserer Website und den Suchkriterien, die du verwendet hast.
Energieausweistyp
Verbrauchsausweis
Gebäudetyp
Wohngebäude
Wesentliche Energieträger
Gas
Gültigkeit
04.04.2025 bis 03.04.2035
Effizienzklasse
C
Endenergieverbrauch
98,10 kWh/(m²·a)
Weitere Energiedaten
Haustyp
Massivhaus
Energieträger
Gas
Details
Objektbeschreibung
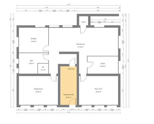
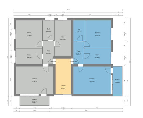
Dieses modernisierte Mehrfamilienhaus mit Gewerbeanteil aus dem Jahr 1980 befindet sich auf einem 1.359 m² großen Grundstück im Gewerbegebiet in Hagen Haspe. Das Haus bietet vier Wohn- und Büroeinheiten mit einer Fläche von ca. 371 m² , ca.100 m² Bürofläche im Souterrain und 40 m² Kellerfläche. Das Haus ist zur Zeit voll...
Ausstattung
Grundstück mit 1.359 m² und
3 Flurstücken
Mehrfamilienhaus mit ca. 371 m² Wohn- und Bürofläche
ca. 100 m² Bürofläche
ca. 40 m² Kellerfläche
Baujahr 1980
4 Wohnungen mit Büroanteil vermietet
1 Büro wird frei...
Preisinformation
17 Stellplätze
4 Garagenstellplätze
Ist-Mieteinnahmen pro Jahr: 42.240,00 EUR
Weitere Informationen
Sonstiges
Der Makler-Vertrag mit uns kommt durch schriftliche Vereinbarung oder die Inanspruchnahme unserer Maklertätigkeit auf der Basis des Objekt-Exposés und seiner Bedingungen zustande. Die Käufercourtage in Höhe von 4,76 % auf den beurkundeten Kaufpreis einschließlich der gesetzlichen Mehrwertsteuer ist bei...
Anbieter der Immobilie
Gebler Immobilien GmbH & Co. KG
Grünstraße 16, 58095 Hagen
Online-ID: 2nc7b5r
Referenznummer: 9049#QnzPzu
Finde Angebote wie dieses
Hier geht es zu unserem Impressum, den Allgemeinen Geschäftsbedingungen, den Hinweisen zum Datenschutz und nutzungsbasierter Online-Werbung.