

Maymar Real estate
Frau Yvette Boerner
003 ···
Nr. anzeigenPreise & Kosten
Lage
Exklusive, moderne Villen in Moraira, Costa Blanca Nord
Entdecken Sie ein exklusives Wohnprojekt mit nur vier Luxusvillen in der prestigeträchtigen Gegend Moravit in Moraira, in der Gemeinde Teulada an der nördlichen Costa Blanca. Diese Boutique-Siedlung bietet eine außergewöhnliche Gelegenheit, ein modernes mediterranes...
Das Haus
Kategorie
Villa
Baujahr
2025
Energie & Heizung
Warum sehe ich diese Anzeige? – Du siehst diese Anzeige basierend auf Ihrer Navigation auf unserer Website und den Suchkriterien, die du verwendet hast.
Energieausweis: für diesen Gebäudetyp nicht notwendig
Weitere Energiedaten
Heizungsart
Fußbodenheizung, Zentralheizung
Details
Objektbeschreibung
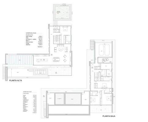
Avantgardistische Architektur mit großzügigen Grundrissen
Die Wohnanlage bietet vier verschiedene Villenentwürfe mit Wohnflächen von ca. 250 m² bis 380 m², die alle auf großzügigen Grundstücken von mehr als 1000 m² liegen. Die Architektur verbindet zeitgenössisches Design mit traditionellen mediterranen Elementen wie...
Anbieter der Immobilie

Online-ID: 2nc785y
Referenznummer: SP1520
Finde Angebote wie dieses
Hier geht es zu unserem Impressum, den Allgemeinen Geschäftsbedingungen, den Hinweisen zum Datenschutz und nutzungsbasierter Online-Werbung.