
Königskinder Immobilien GmbH
Frau Dina Ismail
004 ···
Nr. anzeigenPreise & Kosten
Provision für Käufer
2,975 % inkl. MwSt. vom beurkundeten Kaufpreis
Lage
Die Immobilie befindet sich im idyllischen Teilort Rienharz der Gemeinde Alfdorf im Ostalbkreis, eingebettet in die reizvolle Landschaft von Baden-Württemberg. Die naturnahe Umgebung zeichnet sich durch weitläufige Wiesen, Wälder und eine ruhige, gewachsene Wohnstruktur aus und bietet ein hohes Maß an...
Das Haus
Kategorie
Mehrfamilienhaus
Baujahr
1969
Bezug
sofort!
Energie & Heizung
Warum sehe ich diese Anzeige? – Du siehst diese Anzeige basierend auf Ihrer Navigation auf unserer Website und den Suchkriterien, die du verwendet hast.
Energieausweistyp
Bedarfsausweis
Gebäudetyp
Wohngebäude
Baujahr laut Energieausweis
2016
Wesentliche Energieträger
FLUESSIGGAS
Gültigkeit
bis 20.02.2036
Effizienzklasse
G
Endenergiebedarf
234,80 kWh/(m²·a)
Weitere Energiedaten
Heizungsart
offener Kamin, Zentralheizung
Details
Objektbeschreibung
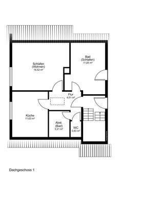
Bei der angebotenen Immobilie handelt es sich um ein charmantes Ein - Zwei - Familienhaus aus dem Baujahr 1969, gelegen auf einem großzügigen Grundstück mit ca. 736 m². Die Gesamtwohnfläche beträgt ca. 130 m² und verteilt sich auf zwei separate Wohneinheiten, die gemäß WEG aufgeteilt sind.
Die Erdgeschosswohnung...
Ausstattung
* Ein - Zwei - Familienhaus (WEG-aufgeteilt)
* Baujahr 1969
* Ca. 130 m² Wohnfläche
* Grundstück ca. 736 m²
* Voll unterkellert
* Beheizter Hobbyraum im Keller
* Holzpelletofen im Erdgeschoss
* Holzofen im Dachgeschoss
* Moderne Gas-Brennwert-Zentralheizung
*...
Weitere Informationen
Sonstiges
Da wir uns bei allen Angaben auf die Informationen Dritter stützen müssen, können wir keine Gewähr für deren Richtigkeit und Vollständigkeit übernehmen.
Bitte haben Sie Verständnis dafür, dass wir nur Anfragen mit vollständiger Adressangabe und erreichbarer Handynummer bearbeiten können.
Nachdem...
Anbieter der Immobilie
Online-ID: 2nc6w5n
Referenznummer: LDW1.DI.10813
Finde Angebote wie dieses
Hier geht es zu unserem Impressum, den Allgemeinen Geschäftsbedingungen, den Hinweisen zum Datenschutz und nutzungsbasierter Online-Werbung.