
ohne-makler.net - Immobilien selbst vermarkten
Privat von W. Schellenberg
Kontaktiere den Anbieter schriftlich, es ist keine Telefonnummer hinterlegt.
Preise & Kosten
Provision für Käufer
provisionsfrei
Lage
Werne ist eine charmante Kleinstadt im Münsterland, Nordrhein-Westfalen, mit rund 30.000 Einwohnern. Die Stadt verbindet historische Altstadt-Atmosphäre mit moderner Infrastruktur und einer guten Anbindung an Dortmund und Münster. Zudem bietet Werne ein vielfältiges Freizeit- und Kulturangebot, darunter das beliebte...
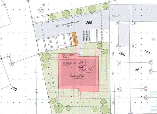
Das Grundstück
Details
Objektbeschreibung
Exklusives Wohnen in Werne - komfortabel, modern und zeitlos!
Dieses Baugrundstück bietet ideale Voraussetzungen für Kapitalanleger, Bauträger oder Investoren. Die Bauvoranfrage für ein Mehrfamilienhaus mit sechs Wohneinheiten wurde bereits von der Stadt Werne positiv beschieden - ein wichtiger Schritt, der Ihnen...
Weitere Informationen
Sonstiges
https://alphagruppe.net/impressumdatenschutz/
Makleranfragen nicht erwünscht. Nach § 7 UWG sind unaufgeforderte Kontaktaufnahmen durch Makler ohne ausdrückliche Einwilligung des Empfängers verboten!
ohne-makler (OM) ist weder Anbieter noch Vermittler der Immobilie. OM betreibt eine Plattform für...
Dokumente
Anbieter der Immobilie
ohne-makler.net - Immobilien selbst vermarkten
Humboldtstr. 25 A, 21509 Glinde
Privat von W. Schellenberg
Dein Ansprechpartner
Kontaktiere den Anbieter schriftlich, es ist keine Telefonnummer hinterlegt.
Online-ID: 2nc5b5g
Referenznummer: 427772
Finde Angebote wie dieses
Hier geht es zu unserem Impressum, den Allgemeinen Geschäftsbedingungen, den Hinweisen zum Datenschutz und nutzungsbasierter Online-Werbung.