
Evernest GmbH
Fabian Kwaßny
+49 ···
Nr. anzeigenPreise & Kosten
Provision für Käufer
3.57 inkl. MwSt.
Bei Abschluss eines notariellen Kaufvertrages ist eine Käuferprovision vom Käufer in Höhe von 3.57 % inkl. MwSt. aus dem Kaufpreis fällig.
Abschreibung/Anlage
Denkmalschutz-Afa
Lage
Rheda-Wiedenbrück ist eine lebendige Mittelstadt mit rund 50.000 Einwohnern im Kreis Gütersloh. Die Stadt verbindet eine attraktive Mischung aus städtischem Leben und ländlicher Umgebung, was sie besonders für Familien und Berufspendler interessant macht. Die starke lokale Wirtschaft mit einer Vielzahl an mittelständischen...
Das Haus
Kategorie
Einfamilienhaus
Baujahr
1800
Energie & Heizung
Warum sehe ich diese Anzeige? – Du siehst diese Anzeige basierend auf Ihrer Navigation auf unserer Website und den Suchkriterien, die du verwendet hast.
Energieausweis: für diesen Gebäudetyp nicht notwendig
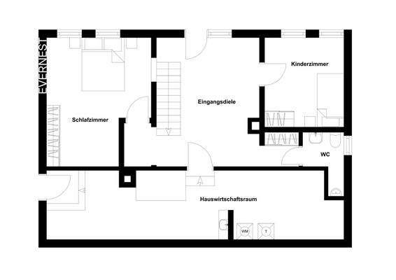
Details
Objektbeschreibung
Kaufen und wohnen Sie in einem Stück Geschichte der idyllischen Altstadt von Rheda-Wiedenbrück und sichern Sie sich diesen bereits umfassend renovierten Wohn(t)raum, welcher die perfekte Symbiose aus moderner Haustechnik und Altbaucharme bietet. Die Gefahr, sich zu verlieben, ist groß, aber hier ist Verlieben definitiv...
Ausstattung
Die Highlights im Überblick:
- Lage, Lage, Lage
- Umfassende Renovierung im Jahr ca. 2013 erfolgt
- Steuerliche Vorteile denkbar
- Fördermittel für weitere Renovierungen denkbar
- Einzigartiger Charme
- Offene Galerie auf der Diele
- Top-Quadratmeterpreis von ca. 1.950,00 €/m²
- Fußbodenheizung im...
Weitere Informationen
Stichworte
Anzahl der Schlafzimmer: 3, Anzahl der Badezimmer: 1, Anzahl der separaten WCs: 1, Anzahl Terrassen: 1, 2 Etagen
Anbieter der Immobilie
Online-ID: 2nc5a5z
Referenznummer: L-W6RA6DH
Finde Angebote wie dieses
Hier geht es zu unserem Impressum, den Allgemeinen Geschäftsbedingungen, den Hinweisen zum Datenschutz und nutzungsbasierter Online-Werbung.