
FALC Immobilien GmbH & Co. KG
Herr Marc Grießhammer
+49 ···
Nr. anzeigenPreise & Kosten
Provision für Käufer
3,57 % inkl. 19 % MwSt. vom notariellen Kaufpreis
Lage
Das Objekt befindet sich in absolut zentraler Innenstadtlage von Bad Marienberg, einem gepflegten Heilklimatischen Kurort im Herzen des Westerwaldes. Die Stadt zeichnet sich durch ihre charmante Kombination aus historischer Bausubstanz, modernen Versorgungsangeboten und naturnahem Lebensgefühl aus. Dank ihrer guten...
Das Renditeobjekt
Frei ab
vermietet
Details
Objektbeschreibung
In zentraler Lage von Bad Marienberg (Rheinland-Pfalz) präsentiert sich dieses großzügige Gewerbeobjekt als attraktive Kapitalanlage mit nachhaltiger Renditeperspektive. Das im Jahr 1986 errichtete Gebäude steht auf einem ca. 1.670 m² großen Grundstück und bietet eine Gesamtnutzfläche von ca. 4.493 m². Es handelt sich um ein...
Ausstattung
Dieses Gewerbeobjekt überzeugt nicht nur durch seine zentrale Lage und großzügige Flächenstruktur, sondern auch durch eine Ausstattung, die auf moderne Nutzungsanforderungen optimal zugeschnitten ist. Funktionalität, Komfort und Effizienz stehen dabei ebenso im Fokus wie Flexibilität und repräsentative...
Preisinformation
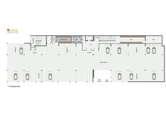
52 Parkhausstellplätze
Weitere Informationen
Sonstiges
Sofern Sie auf eine ruhige und doch zentrale Lage, eine beeindruckende Aufteilung und ein gehobenes Umfeld Wert legen, ist dieses Objekt das ideale Angebot für Sie.
Wir bieten Ihnen eine kostenlose 24/7 Hotline (0800-6460646) an. Bei Interesse fordern Sie einfach das Exposé mit einigen weiteren Inhalten an...
Anbieter der Immobilie
Online-ID: 2nc4x5t
Referenznummer: FALC-MAG-73320
Finde Angebote wie dieses
Hier geht es zu unserem Impressum, den Allgemeinen Geschäftsbedingungen, den Hinweisen zum Datenschutz und nutzungsbasierter Online-Werbung.