

Kraft Immobilien
Herr/Frau Korbinian Kraft
+49 ···
Nr. anzeigenPreise & Kosten
Kaution
3 Kaltmieten
Warum sehe ich diese Anzeige? – Du siehst diese Anzeige basierend auf Ihrer Navigation auf unserer Website und den Suchkriterien, die du verwendet hast.
Lage
Die Wohnung befindet sich in einem modernen Neubau, im beliebten Passauer Stadtteil Hacklberg. Die Lage zeichnet sich durch eine ruhige Wohnatmosphäre im Grünen aus, kombiniert mit der Nähe zur Altstadt von Passau, die nur wenige Minuten mit dem Auto oder dem Fahrrad entfernt liegt. Einkaufsmöglichkeiten für den täglichen...
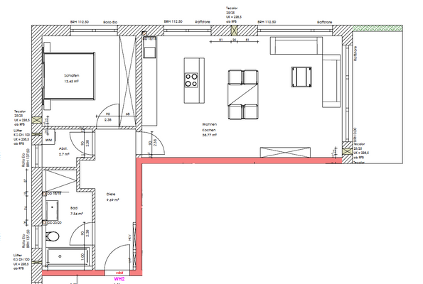
Die Wohnung
Wohnungslage
1. Geschoss
Bezug
nach Absprache
Wohnanlage
Energie & Heizung
Warum sehe ich diese Anzeige? – Du siehst diese Anzeige basierend auf Ihrer Navigation auf unserer Website und den Suchkriterien, die du verwendet hast.
Energieausweistyp
Bedarfsausweis
Gebäudetyp
Wohngebäude
Wesentliche Energieträger
Luftwärmepumpe
Gültigkeit
26.11.2024 bis 25.11.2034
Endenergiebedarf
6,60 kWh/(m²·a)
Weitere Energiedaten
Heizungsart
Luft-/Wasser-Wärmepumpe, Zentralheizung
Details
Objektbeschreibung
- NEUBAU/ ERSTBEZUG -
Nebenkosten sparen! - KfW 40 energieeffizienter Neubau! -
Im Inneren erwartet Sie ein großzügiger, offener Wohn-Ess-Koch-Bereich, der durch viel Tageslicht und eine moderne Einbauküche besticht - die Küche ist bereits inkl. Elektrogeräten im Mietpreis enthalten. Ein praktischer, großer...
Ausstattung
- KfW 40 Klimafreundlicher Neubau
- dezentrales Lüftungssystem mit Wärmerückgewinnung
- 3-Scheiben Isolierverglasung
- Fußbodenheizung in allen Räumen
- moderne Einbauküche mit Elektrogeräten bereits im Mietpreis inklusive
- praktischer Abstell- und Hauswirtschaftsraum in der Wohnung
- teilweise elektrische...
Weitere Informationen
Sonstiges
Haben wir Ihr Interesse geweckt? Dann nutzen Sie bitte das Kontaktformular in der Anzeige und schreiben uns darüber eine E-Mail. Ein ausführliches Exposé senden wir Ihnen gerne nach vollständiger Kontaktanfrage.
Alle Angaben in diesem Exposé wurden sorgfältig und so vollständig wie möglich erstellt. Die...
Anbieter der Immobilie

Online-ID: 2nc3t5s
Referenznummer: 26-WM-113_EW2
Finde Angebote wie dieses
Hier geht es zu unserem Impressum, den Allgemeinen Geschäftsbedingungen, den Hinweisen zum Datenschutz und nutzungsbasierter Online-Werbung.