

Skyline-Immobilien.com GmbH
Herr/Frau Vertrieb Skyline Immobilien
061 ···
Nr. anzeigenPreise & Kosten
Kaution
4.050,00 3 Monatsmieten
Warum sehe ich diese Anzeige? – Du siehst diese Anzeige basierend auf Ihrer Navigation auf unserer Website und den Suchkriterien, die du verwendet hast.
Lage
Die Lorsbacher Straße 1 befindet sich in einer zentrumsnahen Lage im Stadtteil Hofheim, der mit einer hervorragenden Verkehrsanbindung und einer Vielzahl von Infrastrukturangeboten überzeugt. Die Lage bietet eine ideale Kombination aus urbanem Leben und gleichzeitig ruhigerem Wohnen, was sie sowohl für Geschäfts- als auch für...
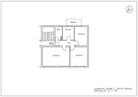
Die Wohnung
Wohnungslage
1. Geschoss
Bezug
nach Vereinbarung
Wohnanlage
Energie & Heizung
Warum sehe ich diese Anzeige? – Du siehst diese Anzeige basierend auf Ihrer Navigation auf unserer Website und den Suchkriterien, die du verwendet hast.
Energieausweistyp
Verbrauchsausweis
Gebäudetyp
Wohngebäude
Wesentliche Energieträger
GAS
Gültigkeit
bis 06.03.2028
Effizienzklasse
E
Endenergieverbrauch
138,80 kWh/(m²·a)
Weitere Energiedaten
Energieträger
Gas
Heizungsart
Zentralheizung
Details
Objektbeschreibung
Willkommen in Hofheim - Ihr neues Zuhause in zentraler Lage!
Diese sanierte Wohnung mit Balkon und ca. 70 m² Wohnfläche befindet sich in einem soliden Mehrfamilienhaus und bietet ideale Voraussetzungen für komfortables Wohnen.
Der gut durchdachte Grundriss sorgt für ein angenehmes Raumgefühl. Die Wohnung verfügt...
Ausstattung
- 1. Obergeschoss
- Bodenbelag (Vinyl)
- Bodenbelag (PVC)
- Tageslichtbad
- Balkon
- Trockenraum
- Fahrradkeller
- eigener Kellerraum
- Neue EInbauküche
Modernisierungen:
- Heizungsanlage wurde 2022 erneuert
- Fassade wird gedämmt
- Fassaden und Schaufenster werden neu angelegt
-...
Weitere Informationen
Stichworte
Süd-Ost-Balkon/Terrasse, Anzahl der Schlafzimmer: 2, Anzahl der Badezimmer: 1
Anbieter der Immobilie

Online-ID: 2nc3m53
Referenznummer: H8408
Finde Angebote wie dieses
Hier geht es zu unserem Impressum, den Allgemeinen Geschäftsbedingungen, den Hinweisen zum Datenschutz und nutzungsbasierter Online-Werbung.