
ohne-makler.net - Immobilien selbst vermarkten
Privat von Familie Kurz
Kontaktiere den Anbieter schriftlich, es ist keine Telefonnummer hinterlegt.
Preise & Kosten
Provision für Käufer
provisionsfrei
Lage
Lage: Ruhiges Wohnen in "zweiter Reihe" mit erstklassiger Anbindung
Die Immobilie befindet sich in einer der gefragtesten Lagen von Dielheim. Trotz der Adresse in der Rauenberger Straße genießen Sie hier absolute Ruhe: Das Gebäude liegt abseits des Verkehrsarms in zweiter Reihe, geschützt durch die vordere Bebauung. Dies...
Das Haus
Kategorie
Einfamilienhaus
Baujahr
1994
Bezug
nach Absprache
Energie & Heizung
Warum sehe ich diese Anzeige? – Du siehst diese Anzeige basierend auf Ihrer Navigation auf unserer Website und den Suchkriterien, die du verwendet hast.
Energieausweistyp
Verbrauchsausweis
Gebäudetyp
Wohngebäude
Effizienzklasse
C
Endenergieverbrauch
85,00 kWh/(m²·a)
Weitere Energiedaten
Energieträger
Gas
Heizungsart
offener Kamin, Zentralheizung
Details
Objektbeschreibung
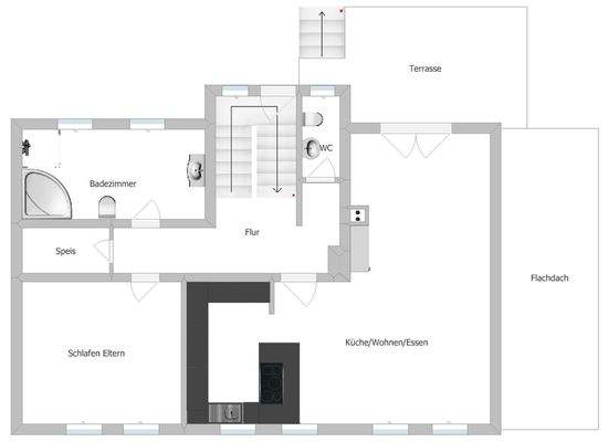
Diese Immobilie beeindruckt durch eine intelligente Raumaufteilung auf drei Ebenen und einen erstklassigen energetischen Zustand. Mit ca. 211 m² Wohnfläche und einem durchdachten Grundriss bietet das Haus die seltene Kombination aus offenem Familienleben und Rückzugsmöglichkeiten.
Das Raumkonzept im...
Ausstattung
Terrasse, Garten, Keller, Vollbad, Duschbad, Einbauküche, Gäste-WC, Kamin, Laminat, Fliesen
Preisinformation
3 Stellplätze
1 Garagenstellplatz
Weitere Informationen
Sonstiges
Heizungsart: Zentralheizung
Energieträger: Gas
Anfragen gerne über die Ohne-Makler Plattform oder per Email an geckomaeleon(at)gmail.com
Makleranfragen nicht erwünscht. Nach § 7 UWG sind unaufgeforderte Kontaktaufnahmen durch Makler ohne ausdrückliche Einwilligung des Empfängers...
Anbieter der Immobilie
ohne-makler.net - Immobilien selbst vermarkten
Humboldtstr. 25 A, 21509 Glinde
Privat von Familie Kurz
Dein Ansprechpartner
Kontaktiere den Anbieter schriftlich, es ist keine Telefonnummer hinterlegt.
Online-ID: 2nc2v5z
Referenznummer: 438203
Finde Angebote wie dieses
Hier geht es zu unserem Impressum, den Allgemeinen Geschäftsbedingungen, den Hinweisen zum Datenschutz und nutzungsbasierter Online-Werbung.