

Rainer Dinkels Immobilien IVD
Herr Jerson Rodriguez Reyes
015 ···
Nr. anzeigenPreise & Kosten
Provision für Käufer
3,57 % inkl. Mwst.für den Käufer, 3,57 % inkl. Mwst, für den Verkäufer entsprechend jeweils schriftlicher Vereinbarung. Käufer und Verkäufer zahlen die genannte Provision jeweils in gleicher Höhe
Lage
Die Immobilie befindet sich in einer ruhigen und familienfreundlichen Wohnlage im Hamburger Westen im Stadtteil Lurup (Bezirk Altona).
Das Umfeld ist geprägt von gepflegten Einfamilienhäusern, Doppelhäusern und kleinen Mehrfamilienhäusern sowie gewachsenen Nachbarschaften – ein Wohnumfeld, das besonders bei Familien sehr...
Das Haus
Kategorie
Doppelhaushälfte
Baujahr
2004
Bezug
01.09.2026
Energie & Heizung
Warum sehe ich diese Anzeige? – Du siehst diese Anzeige basierend auf Ihrer Navigation auf unserer Website und den Suchkriterien, die du verwendet hast.
Energieausweistyp
Bedarfsausweis
Gebäudetyp
Wohngebäude
Baujahr laut Energieausweis
2004
Wesentliche Energieträger
Gas
Effizienzklasse
C
Endenergiebedarf
85,50 kWh/(m²·a)
Weitere Energiedaten
Energieträger
Gas
Heizungsart
Fußbodenheizung, offener Kamin, Zentralheizung
Details
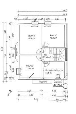
Objektbeschreibung
Diese im Jahr 2004 in konventioneller Massivbauweise errichtete Doppelhaushälfte vereint norddeutsche Architektur, solide Bauqualität und ein durchdachtes Raumkonzept zu einem stimmigen Gesamtbild.
Die rot geklinkerte Fassade verleiht dem Haus einen klassischen, wertbeständigen Charakter. Anthrazitfarbene...
Ausstattung
Erdgeschoss:
Bereits beim Betreten empfängt Sie eine großzügige Diele mit ausreichend Platz für eine Garderobe. Von hier aus erschließen sich ein hell gefliestes Gäste-WC mit Tageslicht sowie ein praktischer Abstellraum für Vorräte und Haushaltsgeräte.
Eine doppelflügelige Sprossentür führt in den offen...
Weitere Informationen
Die Immobilie wird im Rahmen eines qualifizierten Makleralleinauftrags angeboten.
Alle Angaben beruhen auf Informationen des Auftraggebers. Eine Haftung für die Richtigkeit und Vollständigkeit dieser Angaben kann trotz sorgfältiger Prüfung nicht übernommen werden.
Die im Exposé verwendeten Abbildungen beruhen auf...
Anbieter der Immobilie
Rainer Dinkels Immobilien IVD
An der Bahn 1, 25474 Bönningstedt

Online-ID: 2nbzr5y
Finde Angebote wie dieses
Hier geht es zu unserem Impressum, den Allgemeinen Geschäftsbedingungen, den Hinweisen zum Datenschutz und nutzungsbasierter Online-Werbung.