
Immobilien Friedrichsen GmbH & Co. KG
004 ···
Nr. anzeigenPreise & Kosten
Provision für Käufer
3,57 % inkl. MwSt.
Lage
Die Stadt Niebüll, ein anerkannter Luftkurort mit dem anziehenden Flair einer jungen lebendigen Stadt ist der zentrale Wohnort im nördlichen Nordfriesland mit optimalen Verkehrsanbindungen auf Straße und Schiene. Niebüll ist die touristische Drehscheibe im äußersten Nordwesten der Republik. Von hier aus sind die Inseln Sylt...
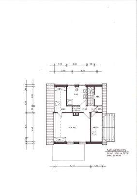
Das Haus
Kategorie
Einfamilienhaus
Bezug
01.10.2026
Energie & Heizung
Warum sehe ich diese Anzeige? – Du siehst diese Anzeige basierend auf Ihrer Navigation auf unserer Website und den Suchkriterien, die du verwendet hast.
Energieausweistyp
Bedarfsausweis
Gebäudetyp
Wohngebäude
Baujahr laut Energieausweis
1928
Wesentliche Energieträger
GAS
Gültigkeit
bis 25.02.2036
Effizienzklasse
H
Endenergiebedarf
328,50 kWh/(m²·a)
Weitere Energiedaten
Haustyp
Massivhaus
Energieträger
Gas
Details
Objektbeschreibung
Dieses gepflegte Einfamilienhaus aus dem Baujahr ca. 1928 befindet sich in zentraler Lage von Niebüll und bietet auf rund 100 m² Wohnfläche ein komfortables Zuhause mit vielseitigen Nutzungsmöglichkeiten. Auf einem ca. 479 m² großen, eingewachsenen Grundstück vereint die Immobilie Charme mit einem durchdachten...
Ausstattung
- ca. 1966 Neubau einer Garage
- ca. 1982/1983 Umbau und Instandsetzung Wohnhaus
- ca. 2018 einen Teil der Fenster erneuert
- ca. 2020 Brennwerttherme eingebaut, Wohnzimmer Diele aufgearbeitet, DG Zimmer mit Vinyl ausgelegt
- ca. 2022 Duschbad im Dachgeschoss erneuert
- ca. 2023 Erneuerung weiterer Fenster
-...
Weitere Informationen
Sonstiges
Wir helfen Ihnen gerne bei der Finanzierung der Immobilie!
Unser Service / Ihre Vorteile:
-Erstellung eines individuellen Finanzierungskonzeptes
-Finanzierungsvorprüfung "Was kann ich mir leisten?"
-Einbindung und Prüfung von Fördermöglichkeiten
- Auswahl einer passenden und günstigen...
Anbieter der Immobilie

Immobilien Friedrichsen GmbH & Co. KG
Online-ID: 2nbwx5w
Referenznummer: 9507
Finde Angebote wie dieses
Hier geht es zu unserem Impressum, den Allgemeinen Geschäftsbedingungen, den Hinweisen zum Datenschutz und nutzungsbasierter Online-Werbung.