
REMS Immobilien GmbH
Herr Dominik Bank
004 ···
Nr. anzeigenPreise & Kosten
Provision für Käufer
Käuferprovision beträgt 3,57 % (inkl. MwSt.) des beurkundeten Kaufpreises
Lage
Die Immobilie befindet sich in aussichtsschöner Hanglage von Plüderhausen. Die Gemeinde ist landschaftlich reizvoll im Remstal eingebettet und liegt ca. 30 Kilometer östlich der Landeshauptstadt Stuttgart. Mehrere Einkaufsmöglichkeiten, zwei Apotheken, eine Postfiliale, mehrere Bankfilialen und diverse Fach- und Einzelhändler...
Das Haus
Kategorie
Mehrfamilienhaus
Baujahr
1964
Bezug
Sofort verfügbar
Energie & Heizung
Warum sehe ich diese Anzeige? – Du siehst diese Anzeige basierend auf Ihrer Navigation auf unserer Website und den Suchkriterien, die du verwendet hast.
Energieausweistyp
Bedarfsausweis
Gebäudetyp
Wohngebäude
Baujahr laut Energieausweis
1964
Wesentliche Energieträger
OEL
Gültigkeit
bis 24.12.2035
Effizienzklasse
G
Endenergiebedarf
220,10 kWh/(m²·a)
Weitere Energiedaten
Energieträger
Öl
Heizungsart
Zentralheizung
Details
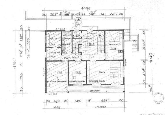
Objektbeschreibung
In ruhiger und bevorzugter Wohnlage von Plüderhausen präsentiert sich dieses charmante und großzügige Zweifamilienhaus auf einem idyllischen, ca. 1.153 m² großen Hanggrundstück in sonniger Südausrichtung. Mit einer Gesamtwohnfläche von ca. 250,38 m², verteilt auf zwei eigenständige Wohneinheiten sowie weitere Fläche von ca...
Ausstattung
Highlights:
- Traumhafte und ruhige Hanglage in bevorzugtem Wohngebiet von Plüderhausen
- Großzügiges Grundstück mit ca. 1.153 m² in sonniger Südausrichtung mit herrlichem Weitblick
- Gesamtwohnfläche ca. 250 m², verteilt auf zwei separate Wohneinheiten plus weitere Fläche im Dachgeschoss von ca. 88 m², die nach...
Preisinformation
2 Garagenstellplätze
Weitere Informationen
Sonstiges
Mit der Anfrage bei und durch Inanspruchnahme der Dienstleistung der Firma REMS Immobilien GmbH wird ein Maklervertrag geschlossen. Sofern es durch die Tätigkeit der Firma REMS Immobilien GmbH zu einem wirksamen Hauptvertrag mit der Eigentümerseite kommt, hat der Interessent bei Abschluss eines KAUFVERTRAGS die...
Anbieter der Immobilie
Online-ID: 2nbwm5c
Referenznummer: 26001012
Finde Angebote wie dieses
Hier geht es zu unserem Impressum, den Allgemeinen Geschäftsbedingungen, den Hinweisen zum Datenschutz und nutzungsbasierter Online-Werbung.