
D + P Immobilien GmbH
Herr Felix Halstrick
022 ···
Nr. anzeigenPreise & Kosten
Provision für Käufer
Bitte beachte, das Angebot kann bei Vertragsabschluss die Zahlung einer Provision beinhalten. Weitere Informationen erhältst Du vom Anbieter.
Lage
Die Produktionshalle liegt im Gewerbe- und Industriepark Sinzig, unmittelbar angrenzend an die B9 und etwa 6 km von der Abfahrt Sinzig der BAB 61 entfernt.
Das Gewerbegebiet wurde Ende der 1980er Jahre entwickelt. Seither haben sich dort rund 140 Unternehmen angesiedelt. Der Branchenmix umfasst u. a. das Autohaus...
Büro-/Praxisfläche
Kategorie
Bürofläche
Baujahr
1975
Bezug
nach Vereinbarung
Energie & Heizung
Warum sehe ich diese Anzeige? – Du siehst diese Anzeige basierend auf Ihrer Navigation auf unserer Website und den Suchkriterien, die du verwendet hast.
Wärme
Energieausweistyp
Verbrauchsausweis
Gebäudetyp
Nicht-Wohngebäude
Baujahr laut Energieausweis
1975
Wesentliche Energieträger
OEL
Gültigkeit
bis 25.06.2034
Endenergieverbrauch (Wärme)
203,10 kWh/(m²·a)
Details
Objektbeschreibung
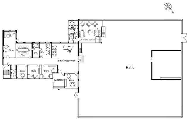
Diese großzügige und vielseitig nutzbare Gewerbeeinheit mit einer Fläche von ca. 420 m² steht zum Verkauf und bietet ideale Voraussetzungen für unterschiedliche Nutzungskonzepte. Die flexible Raumaufteilung ermöglicht eine individuelle Gestaltung und umfasst neben klassischen Büroflächen auch Funktionsräume, Umkleidebereiche...
Ausstattung
- Flexible Unterteilungsmöglichkeiten
- Separater Umkleidebereich mit WC-Anlagen
- Angrenzendes noch nicht bebautes Grundstück
- Ausreichend Parkplätze und Freiflächen
- Verschieden große Büro- und Funktionsräume
- lichtdurchflutete Räume
- sehr gute Erreichbarkeit
-...
Preisinformation
10 Stellplätze
Weitere Informationen
Stichworte
Gesamtfläche: 7.953,00 m², Grundstücksfläche: 7.953,00 m², Bundesland: Nordrhein-Westfalen
Anbieter der Immobilie
D + P Immobilien GmbH
Mühlenstr. 50a, 53721 Siegburg
Online-ID: 2nbw95r
Referenznummer: 8573
Finde Angebote wie dieses
Hier geht es zu unserem Impressum, den Allgemeinen Geschäftsbedingungen, den Hinweisen zum Datenschutz und nutzungsbasierter Online-Werbung.