
Wohnungsmarkt Erzgebirge
Frau Sandra Barthel
+49 ···
Nr. anzeigenPreise & Kosten
Provision für Käufer
3,57% vom KP, mind. 3570,00€ inkl. MwSt.
Die Maklercourtage beträgt 3,57% von Kaufpreis inkl. MwSt, mindestens jedoch 3570,00€. Sie ist fällig und verdient mit der Unterzeichnung vom Kaufvertrag. Weitere Informationen siehe Provisionshinwe
Lage
Die Immobilie befindet sich im ländlichen Hennersdorf, ein Dorf welches zur Stadt Augustusburg gehört. Der Ort liegt im Tal der Zschpoau, umgeben von Wiesen, Feldern und Wäldern. Hier lässt es sich ruhig und entspannt wohnen, fernab von jeglichem Lärm und Verkehr. Alles zum Leben Erforderliche ist in den Nachbargemeinden und...
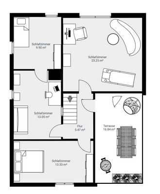
Das Haus
Kategorie
Einfamilienhaus
Geschosse
2 Geschosse
Baujahr
1959
Derzeitige Nutzung
frei
Energie & Heizung
Warum sehe ich diese Anzeige? – Du siehst diese Anzeige basierend auf Ihrer Navigation auf unserer Website und den Suchkriterien, die du verwendet hast.
Energieausweistyp
Bedarfsausweis
Gebäudetyp
Wohngebäude
Baujahr laut Energieausweis
1959
Wesentliche Energieträger
Strom
Gültigkeit
16.01.2025 bis 16.01.2035
Effizienzklasse
H
Endenergiebedarf
355,70 kWh/(m²·a)
Weitere Energiedaten
Energieträger
Elektro
Heizungsart
Etagenheizung, Ofen
Details
Objektbeschreibung
Zum Verkauf steht ein ca. 1959 in massiver Bauweise errichtetes Gebäude, welches ursprünglich als Scheune genutzt wurde. Anfang der 70iger Jahre wurde das Objekt um einen Anbau erweitert und zum Einfamilienhaus umgebaut. Durch die Weiterverwendung einiger alter Materialien der Scheune, wie Holz und Steine, versprüht das...
Ausstattung
Das Objekt wurde bereits in weiten Teilen saniert. Es wurde eine PV-Anlage mit 3,64 kWh Einspeisung installiert. Die dazu erforderlichen Leitungen und der Stromkasten wurden gleichzeitig erneuert. Jedoch wurden alle weiteren Stromleitungen noch nicht ersetzt. Die Wasser-/Abwasserleitungen wurden 2022 ebenfalls erneuert, das...
Weitere Informationen
Provisionshinweis
3,57% vom KP, mind. 3570,00€ inkl. MwSt.
Die Maklercourtage beträgt 3,57% von Kaufpreis inkl. MwSt, mindestens jedoch 3570,00€. Sie ist fällig und verdient mit der Unterzeichnung vom Kaufvertrag. Eine Vereinbarung in gleicher Höhe wurde mit dem Verkäufer getroffen.
Sonstiges
Diese Immobilie...
Anbieter der Immobilie

Wohnungsmarkt Erzgebirge
Robert - Blum - Str. 23, 09456 Annaberg - B.
Online-ID: 2nbvk5u
Referenznummer: 166095697#OkrsQc
Finde Angebote wie dieses
Hier geht es zu unserem Impressum, den Allgemeinen Geschäftsbedingungen, den Hinweisen zum Datenschutz und nutzungsbasierter Online-Werbung.