
Dortmunder Volksbank eG
Immobiliencenter Dortmund
004 ···
Nr. anzeigenPreise & Kosten
Provision für Käufer
3,57 % inkl. MwSt. inkl. MwSt.
Lage
Hier erleben Sie ein untypisches Landleben: Sie haben eine optimale Anbindung an den ÖPNV durch die Stadtbahn, sind wenige Kilometer von der A2 und der B236 entfernt, können mit dem Fahrrad einkaufen fahren und zu Fuß in die Natur gehen. In den umliegenden Stadtteilen Scharnhorst und Husen-Kurl sind Grundschulen und...
Das Haus
Kategorie
Einfamilienhaus
Baujahr
1913
Energie & Heizung
Warum sehe ich diese Anzeige? – Du siehst diese Anzeige basierend auf Ihrer Navigation auf unserer Website und den Suchkriterien, die du verwendet hast.
Energieausweistyp
Bedarfsausweis
Gebäudetyp
Wohngebäude
Baujahr laut Energieausweis
1913
Wesentliche Energieträger
OEL
Gültigkeit
25.05.2025 bis 24.05.2035
Effizienzklasse
H
Endenergiebedarf
335,50 kWh/(m²·a)
Weitere Energiedaten
Energieträger
Öl
Details
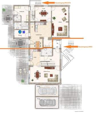
Objektbeschreibung
Exposé-Nr. 200-13758
Angaben zum Energieausweis: Bedarfsausweis, Endenergiebedarf: 335,5 kWh/(m²*a), Wesentlicher Energieträger: Heizöl EL, Baujahr: 1913, Anbau 1996, Energieeffizienzklasse: H
Dieses und weitere Immobilienangebote finden Sie auf unserer Homepage immo.dovoba.de.
Inmitten einer Landschaft...
Preisinformation
2 Garagenstellplätze
Weitere Informationen
Stichworte
Anzahl der Badezimmer: 3, Anzahl der separaten WCs: 3, Bundesland: Nordrhein-Westfalen
Anbieter der Immobilie
Dortmunder Volksbank eG
Betenstr. 10, 44137 Dortmund
Online-ID: 2nbvj57
Referenznummer: 13758
Finde Angebote wie dieses
Hier geht es zu unserem Impressum, den Allgemeinen Geschäftsbedingungen, den Hinweisen zum Datenschutz und nutzungsbasierter Online-Werbung.