
Thomas Dörnhoff Immobilien, seit 1968 - IVD
Herr Thomas Dörnhoff
004 ···
Nr. anzeigenPreise & Kosten
Provision für Käufer
3,57 %, inkl. MwSt. (berechnet vom Kaufpreis)
Lage
Die Immobilie befindet sich in ruhiger Wohnlage von Dortmund-Neuasseln, einem gewachsenen und angenehm bodenständigen Stadtteil im Osten Dortmunds. Die Umgebung ist geprägt von gepflegten Ein- und Zweifamilienhäusern, kleinen Siedlungsstrukturen und viel Grün - kein Durchgangsverkehr, keine Hektik, sondern ein entspanntes...
Das Haus
Baujahr
1913
Derzeitige Nutzung
vermietet
Energie & Heizung
Warum sehe ich diese Anzeige? – Du siehst diese Anzeige basierend auf Ihrer Navigation auf unserer Website und den Suchkriterien, die du verwendet hast.
Energieausweistyp
Bedarfsausweis
Gebäudetyp
Wohngebäude
Baujahr laut Energieausweis
1913
Wesentliche Energieträger
GAS
Gültigkeit
bis 27.02.2036
Effizienzklasse
G
Endenergiebedarf
214,86 kWh/(m²·a)
Weitere Energiedaten
Haustyp
Massivhaus
Energieträger
Gas
Details
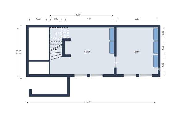
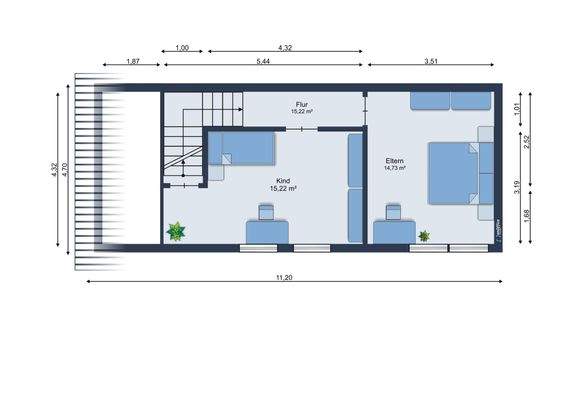
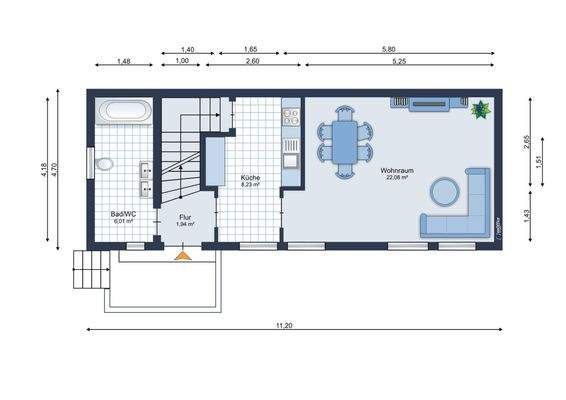
Objektbeschreibung
Charmantes Siedlungshaus mit großem Grundstück - viel Potenzial in gewachsener Lage von Dortmund-Neuasseln
Dieses im Jahr 1913 errichtete, massiv gebaute Siedlungshaus befindet sich auf einem ca. 425 m² großen Grundstück in ruhiger Wohnlage von Dortmund-Neuasseln. Mit rund 72 m² Wohnfläche, verteilt auf Erd- und...
Ausstattung
Gaszentralheizung: 1994
Fenster: ca. 1980
Grundlegende Modernisierungen ca. 1980-1990
Preisinformation
2 Stellplätze
Weitere Informationen
Sonstiges
Es liegt ein Energiebedarfsausweis vor.
Dieser ist gültig bis 27.2.2036.
Endenergiebedarf beträgt 214.86 kwh/(m²*a).
Wesentlicher Energieträger der Heizung ist Gas.
Das Baujahr des Objekts lt. Energieausweis ist 1913.
Die Energieeffizienzklasse ist G.
Schnellster Exposéversand:
Um Ihnen...
Anbieter der Immobilie
Online-ID: 2nbtl5q
Referenznummer: A-1174-10-25
Finde Angebote wie dieses
Hier geht es zu unserem Impressum, den Allgemeinen Geschäftsbedingungen, den Hinweisen zum Datenschutz und nutzungsbasierter Online-Werbung.