
Innovationsfabrik GmbH
Herrn Daniel Stähli
084 ···
Nr. anzeigenPreise & Kosten
Provision für Käufer
provisionsfrei
Lage
Ernsgaden ist eine familienfreundliche Gemeinde im oberbayerischen Landkreis Pfaffenhofen an der Ilm und liegt nur rund 15 km vom Stadtzentrum Ingolstadts entfernt. Die Lage bietet den idealen Mix aus Ruhe, Dorfidylle und gleichzeitig kurzer Anbindung an wichtige Arbeitgeber und urbane Infrastruktur. Damit eignet sich...
Die Wohnung
Kategorie
Terrassenwohnung
Wohnungslage
Erdgeschoss
Wohnanlage
Energie & Heizung
Warum sehe ich diese Anzeige? – Du siehst diese Anzeige basierend auf Ihrer Navigation auf unserer Website und den Suchkriterien, die du verwendet hast.
Weitere Energiedaten
Haustyp
KfW 55
Heizungsart
Fußbodenheizung, Luft-/Wasser-Wärmepumpe, Zentralheizung
Details
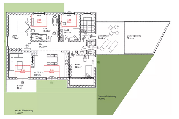
Objektbeschreibung
Im Zuge einer umfassenden Renovierung entsteht in diesem Wohngebäude eine moderne, energieeffiziente Erdgeschosswohnung mit großzügigem Grundriss, hochwertigen Materialien und einem außergewöhnlich großen privaten Gartenanteil. Ideal für Familien oder alle, die viel Raum und zeitgemäßes Wohnen schätzen.
Die Wohnung...
Ausstattung
- Effiziente Wärmepumpe
- 3-fach verglaste Fenster
- Fußbodenheizung
- Helle Räume und großzügige Grundrisse
Weitere Informationen
Sonstiges
Interesse geweckt?
Nutzen Sie die Chance, eine moderne, großzügige Wohnung zu erwerben — mit individueller Mitgestaltungsmöglichkeit während der Bauphase!
Stellen Sie noch heute Ihre Anfrage.
Eigenes Grundstück?
Gerne planen wir Ihr Wunschhaus individuell auf Ihr Grundstück zugeschnitten und...
Dokumente
Anbieter der Immobilie
Online-ID: 2nbtg5q
Referenznummer: Ernsgaden; 4-Zimmer EG-Wohnung
Finde Angebote wie dieses
Hier geht es zu unserem Impressum, den Allgemeinen Geschäftsbedingungen, den Hinweisen zum Datenschutz und nutzungsbasierter Online-Werbung.