
Debeka Bausparkasse AG
Frau Isabelle Krämer
Kontaktiere den Anbieter schriftlich, es ist keine Telefonnummer hinterlegt.
Preise & Kosten
Provision für Käufer
3,45% inkl. MwSt.
Lage
Die Immobilie befindet sich in attraktiver Lage von Heidesheim am Rhein, einem Stadtteil von Ingelheim am Rhein.
Die sehr gute Infrastruktur lässt keine Wünsche offen: Bahnhof, Grundschule, Kindergärten, Ärzte, Bäckereien und Gastronomie sind bequem fußläufig erreichbar. Einkaufsmöglichkeiten für den täglichen Bedarf...
Das Haus
Kategorie
Einfamilienhaus
Baujahr
1995
Bezug
nach Absprache
Energie & Heizung
Warum sehe ich diese Anzeige? – Du siehst diese Anzeige basierend auf Ihrer Navigation auf unserer Website und den Suchkriterien, die du verwendet hast.
Energieausweistyp
Verbrauchsausweis
Gebäudetyp
Wohngebäude
Wesentliche Energieträger
Gas
Gültigkeit
12.01.2026 bis 01.11.2036
Effizienzklasse
F
Endenergieverbrauch
190,30 kWh/(m²·a)
Weitere Energiedaten
Energieträger
Gas
Heizungsart
Fußbodenheizung, offener Kamin
Details
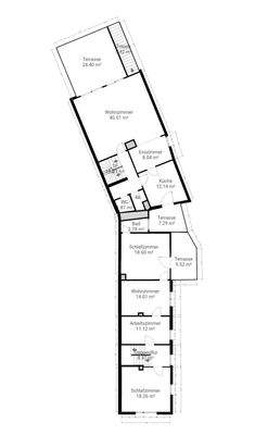
Objektbeschreibung
Dieses attraktive Anwesen besteht aus einem Vorder- und einem Hinterhaus und bietet vielfältige Nutzungsmöglichkeiten. Die separaten Wohnhäuser auf einem gemeinsamen Grundstück sind nach Wohnungseigentumsgesetz geteilt.
Ob als Zuhause für mehrere Generationen einer Familie, zum Wohnen oder Vermieten oder für die...
Weitere Informationen
Sonstiges
Die genannten Informationen beruhen auf den Angaben des Verkäufers. Für die Richtigkeit und Vollständigkeit der Angaben wird keine Gewähr oder Haftung übernommen.
Seit dem 25. Mai 2018 gilt in Deutschland die EU-Datenschutz-Grundverordnung (DS-GVO). Sie regelt, wie private Unternehmen und öffentliche...
Anbieter der Immobilie

Debeka Bausparkasse AG
Debeka-Platz 2, 56073 Koblenz
Frau Isabelle Krämer
Dein Ansprechpartner
Kontaktiere den Anbieter schriftlich, es ist keine Telefonnummer hinterlegt.
Online-ID: 2nbsc5r
Referenznummer: 1009716#4Fd7ty
Finde Angebote wie dieses
Hier geht es zu unserem Impressum, den Allgemeinen Geschäftsbedingungen, den Hinweisen zum Datenschutz und nutzungsbasierter Online-Werbung.