
RS-Wohnbau GmbH
Kundenberatung RS-Wohnbau GmbH
089 ···
Nr. anzeigenPreise & Kosten
Provision für Käufer
provisionsfrei
Lage
Parsdorf / Vaterstetten - Circa 17 Kilometer östlich vor den Toren Münchens gelegen, bietet dieser gewachsene, beschauliche Ortsteil der Gemeinde Vaterstetten ein hohes Maß an Wohn- und Lebensqualität.
Einkaufsmöglichkeiten für den täglichen Bedarf, Restaurants sowie diverse Dienstleister befinden sich direkt im Ort...
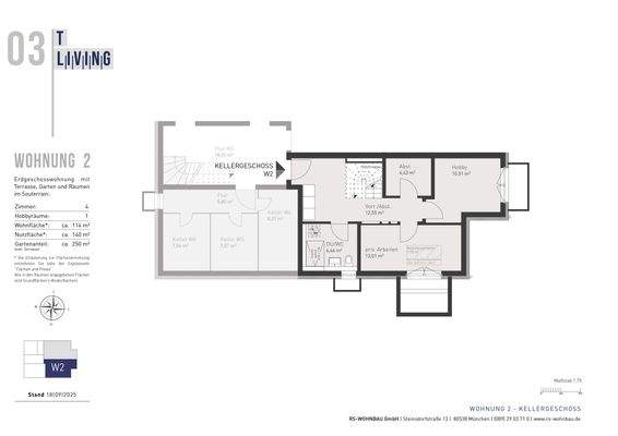
Die Wohnung
Wohnungslage
Erdgeschoss
Wohnanlage
Energie & Heizung
Warum sehe ich diese Anzeige? – Du siehst diese Anzeige basierend auf Ihrer Navigation auf unserer Website und den Suchkriterien, die du verwendet hast.
Energieausweistyp
Bedarfsausweis
Gebäudetyp
Wohngebäude
Wesentliche Energieträger
Luftwärmepumpe
Gültigkeit
10.05.2023 bis 09.05.2033
Endenergiebedarf
7,10 kWh/(m²·a)
Weitere Energiedaten
Heizungsart
Luft-/Wasser-Wärmepumpe
Details
Objektbeschreibung
Das Gebäude wird nach dem energiesparenden Standard "Effizienzhaus 40" (EE-Klasse A+) gebaut und ist somit - dank modernster Haustechnik - bestens für die Zukunft gerüstet. Das hochwertige Mehrfamilienhaus umfasst lediglich sechs individuelle Wohnungen (2 bis 3 Zimmer sowie 3 Zimmer plus 2 in Wohnraumqualität ausgebauten...
Ausstattung
Energiesparendes "Effizienzhaus 40" in bewährter RS-Wohnbau-Qualität
Um natürliche Ressourcen zu schonen und dem Objekt einen hohen Grad an Nachhaltigkeit zu verleihen, wird dieses mit modernster Wärmepumpentechnologie ausgestattet. Gleichzeitig wird seinen Bewohnern damit eine hohe Energieeffizienz...
Preisinformation
2 Duplex-Stellplätze
Weitere Informationen
Sonstiges
provisionsfrei
Stichworte
Stellplatz vorhanden, Duplex-Stellplatz vorhanden, Nutzfläche: 140,00 m², Anzahl der Schlafzimmer: 3, Anzahl der Badezimmer: 2, Anzahl Balkone: 1, Balkon-Terrassen-Fläche: 18,32 m², Gartenfläche: 250,00 m², 2 Etagen
Anbieter der Immobilie
Online-ID: 2nbqw5r
Referenznummer: WHG 2_T03
Finde Angebote wie dieses
Hier geht es zu unserem Impressum, den Allgemeinen Geschäftsbedingungen, den Hinweisen zum Datenschutz und nutzungsbasierter Online-Werbung.