

VARIO-BAU Fertighaus GesmbH
Frau Nesrin Davi
+49 ···
Nr. anzeigenPreise & Kosten
Provision für Käufer
provisionsfrei
Lage
Rheinweiler punktet durch seine hervorragende Lage im Dreiländereck Deutschland–Frankreich–Schweiz. Die Gemeinde liegt nur wenige Fahrminuten von Basel entfernt und bietet damit beste Anbindung an den internationalen Arbeits- und Wirtschaftsraum. Auch Mulhouse in Frankreich sowie Freiburg im Breisgau - sowohl mit dem Auto...
Die Wohnung
Kategorie
Terrassenwohnung
Wohnungslage
Erdgeschoss
Wohnanlage
Energie & Heizung
Warum sehe ich diese Anzeige? – Du siehst diese Anzeige basierend auf Ihrer Navigation auf unserer Website und den Suchkriterien, die du verwendet hast.
Weitere Energiedaten
Haustyp
KfW 40
Heizungsart
Fußbodenheizung, Luft-/Wasser-Wärmepumpe
Details
Objektbeschreibung
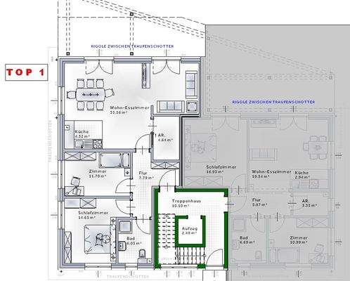
In Bad Bellingen-Rheinweiler entsteht ein modernes Mehrfamilienhaus mit nur 7 Wohneinheiten – ein Ort, an dem Sie sich vom ersten Moment an wohlfühlen können.
Die Erdgeschosswohnung verfügt über zwei Schlafräume, ein Tageslichtbad, einen Abstellraum und über ein großzügiges Wohn-Ess-Zimmer mit offener Küche und direktem...
Weitere Informationen
Sonstiges
Info: Anzahl Etagen: 3
Stellplatz ohne Carport (11 Stpl. genehmigt) 16.000 €
Aufpreis Carport (3 Carports genehmigt) 8.000 €
Anbieter der Immobilie

VARIO-BAU Fertighaus GesmbH
Ackergasse 21, 2700 WIENER NEUSTADT

Online-ID: 2nbpb5a
Finde Angebote wie dieses
Hier geht es zu unserem Impressum, den Allgemeinen Geschäftsbedingungen, den Hinweisen zum Datenschutz und nutzungsbasierter Online-Werbung.