
HausHirsch GmbH
Herr Mario Costa
+97 ···
Nr. anzeigenPreise & Kosten
Provision für Käufer
provisionsfrei
Abschreibung/Anlage
Denkmalschutz-Afa
Lage
Im Herzen der pulsierenden Stadt Dubai gelegen, bietet dieses Haus die perfekte Mischung aus Bequemlichkeit, Luxus und Komfort.
Umgeben von einem breiten Angebot an Annehmlichkeiten finden die Bewohner alles, was sie für den täglichen Bedarf benötigen. Von Supermärkten über Arztpraxen bis hin zu Apotheken ist in dieser...
Die Wohnung
Bezug
Q4 2031
Wohnanlage
Details
Objektbeschreibung
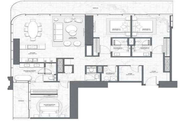
Willkommen in dieser atemberaubenden Wohnung mit drei Schlafzimmern in einer fantastischen Wohnanlage, die für Familien und Investoren gleichermaßen geeignet ist. Diese wunderschön gestaltete Wohnung verfügt über geräumige und helle Wohnbereiche, drei gemütliche Schlafzimmer, eine moderne Küche mit hochwertigen Geräten und...
Ausstattung
Willkommen in der Wohnung mit drei Schlafzimmern in einem lebendigen und gefragten Viertel der Stadt. Wenn Sie die Wohnung betreten, werden Sie von einem geräumigen und lichtdurchfluteten Wohnzimmer begrüßt, das perfekt ist, um Gäste zu empfangen oder mit Ihren Lieben zu entspannen. Die offene Raumaufteilung verbindet das...
Weitere Informationen
Sonstiges
DubaiView - Our selected properties in Dubai - https://dubaiview.com/properties/
Stichworte
Anzahl der Schlafzimmer: 3, Anzahl der Badezimmer: 3, Anzahl Balkone: 1, Bundesland: Dubai
Anbieter der Immobilie
Online-ID: 2nbmt55
Referenznummer: Trump Tower 3BHK APT-DV-9419
Finde Angebote wie dieses
Hier geht es zu unserem Impressum, den Allgemeinen Geschäftsbedingungen, den Hinweisen zum Datenschutz und nutzungsbasierter Online-Werbung.