
P Immobilien Beratung GmbH
Herr Birhat Cakir
004 ···
Nr. anzeigenPreise & Kosten
Provision für Käufer
2,975% inkl. gesetzlicher Mehrwertsteuer inkl. MwSt.
Lage
Gernsbach-Scheuern, idyllisch im malerischen Murgtal gelegen, bietet einen attraktiven Wohnstandort inmitten großartiger Natur. Dieser größte Ortsteil Gernsbachs, der 2017 seine 750-Jahrfeier beging, zeichnet sich durch einen besonders hohen Freizeitwert aus. Die Nähe zur Grundschule, zum Kindergarten und das aktive...
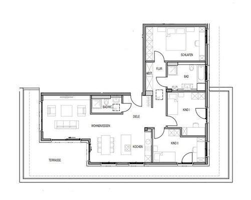
Die Wohnung
Bezug
sofort
Wohnanlage
Energie & Heizung
Warum sehe ich diese Anzeige? – Du siehst diese Anzeige basierend auf Ihrer Navigation auf unserer Website und den Suchkriterien, die du verwendet hast.
Energieausweistyp
Bedarfsausweis
Gebäudetyp
Wohngebäude
Wesentliche Energieträger
FERN
Gültigkeit
18.06.2021 bis 17.06.2031
Effizienzklasse
B
Endenergiebedarf
66,90 kWh/(m²·a)
Details
Objektbeschreibung
Sichern Sie sich diese außergewöhnliche Penthouse-Wohnung mit ca. 121 m² Wohnfläche und 4 großzügigen Zimmern. Die Immobilie überzeugt durch eine moderne, hochwertige Ausstattung und eine beeindruckende Rundumsicht auf die Berge des Schwarzwald.
Hochwertiger Vinylboden, Fußbodenheizung sowie dreifach verglaste...
Preisinformation
2 Tiefgaragenstellplätze, Kaufpreis je: 17.000,00 EUR
Weitere Informationen
Sonstiges
Die Angaben in diesem Exposé beruhen auf uns erteilten Informationen. Eine Haftung für die Richtigkeit und Vollständigkeit können wir jedoch nicht übernehmen. Unser Nachweis- und/oder Vermittlungshonorar beträgt vom Käufer bei einem Kauf 2,38% des Kaufpreises, inklusive der gesetzlichen Mehrwertsteuer, fällig bei...
Anbieter der Immobilie
Online-ID: 2nbmg5s
Referenznummer: 5281
Finde Angebote wie dieses
Hier geht es zu unserem Impressum, den Allgemeinen Geschäftsbedingungen, den Hinweisen zum Datenschutz und nutzungsbasierter Online-Werbung.