
Crozilla.com
Opereta
+38 ···
Nr. anzeigenPreise & Kosten
Provision für Käufer
Bitte beachte, das Angebot kann bei Vertragsabschluss die Zahlung einer Provision beinhalten. Weitere Informationen erhältst Du vom Anbieter.
Die Immobilie
Zu diesem Angebot wurden vom Anbieter keine weiteren Daten hinterlegt. Für weitere Informationen bitte den Anbieter kontaktieren.
Nach Informationen fragenDetails
Objektbeschreibung
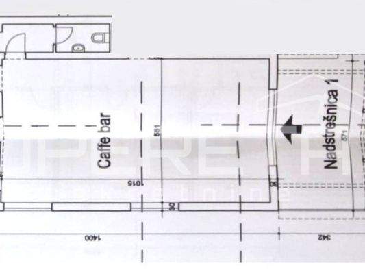
POSLOVNI PROSTOR, PRODAJA, SESVETE, CAFFE BAR (112m2), Selska cesta sa cca 70 sjedecih mjesta, u stambeno-poslovne zgrade s natkrivenom terasom. Sastoji se od zatvorenog prostora 86m2 : uredeni prostor caffe bara, skladiste, sanitarni cvorovi. Pripada mu jos vanjske terase 20m2, lode, nadstresnice 30m2, sve obracunato...
Weitere Informationen
Stichworte
Wohnfläche: 112,00 m², 1 Etagen
Anbieter der Immobilie
Crozilla.com
Nova cesta 60, 10000 ZAGREB
Online-ID: 2nblt5g
Referenznummer: 19346652_0
Finde Angebote wie dieses
Hier geht es zu unserem Impressum, den Allgemeinen Geschäftsbedingungen, den Hinweisen zum Datenschutz und nutzungsbasierter Online-Werbung.