

EDE INVEST GmbH & Co. KG
Frau Susanne Dettinger-Klemm
+49 ···
Nr. anzeigenPreise & Kosten
Provision für Käufer
3,57 % inkl. MwSt. (3,00 % netto) inkl. MwSt.
Lage
Es ist eine Seltenheit so eine schöne und ruhige Wohnlage nur ca. 30 Autominuten von der Münchner Metropole entfernt zu finden. In dieser herrlich ruhigen Wohnlage profitieren Sie von einer verkehrsberuhigten 30. Zone und von einer gewachsenen, äusserst gepflegten Siedlung. Für Familien ist diese Lage ein Traum...
Das Haus
Kategorie
Doppelhaushälfte
Baujahr
2026
Bezug
sofort
Energie & Heizung
Warum sehe ich diese Anzeige? – Du siehst diese Anzeige basierend auf Ihrer Navigation auf unserer Website und den Suchkriterien, die du verwendet hast.
Energieausweis: für diesen Gebäudetyp nicht notwendig
Weitere Energiedaten
Heizungsart
Fußbodenheizung, Luft-/Wasser-Wärmepumpe
Details
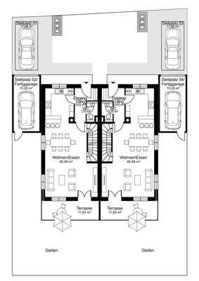
Objektbeschreibung
In einer eingewachsenen und gepflegten Wohngegend in Riemerling bei Hohenbrunn, entstehen zwei Doppelhaushälften mit allem, was das Herz begehrt. Eine ausgezeichnete Infrastruktur sorgt dafür, dass der Alltag einfach zu meistern ist. Die sicht- und spürbare Abgeschlossenheit jeder Haushälfte garantiert ein außergewöhnliches...
Ausstattung
- In Massivbauweise
- Der Edelrohbau ist bereits fertiggestellt
- Klimabewusst & nachhaltig mit wohngesunden Materialien
- Ziegelmauerwerk mit 30 cm bzw. 36,5 cm Außenwände
- Innenwände mit 17,50 cm und 11,5 cm Ziegelmauerwerk, bzw. Trockenbauwände
- Dreifach wärmeschutzverglaste...
Preisinformation
2 Stellplätze
Weitere Informationen
Sonstiges
Alle in diesem Exposé verwendeten Angaben beruhen auf Informationen von Dritten (z.B. Eigentümer, Hausverwaltung, etc.) und daher freibleibend und ohne jegliche Gewähr. Zahlenangaben sind immer als ca-Angaben zu verstehen. Irrtum, Änderungen, Zwischenverkauf oder Zwischenvermietung bleiben vorbehalten. Die...
Anbieter der Immobilie
EDE INVEST GmbH & Co. KG
Bavariaring 18, 80336 München

Online-ID: 2nbgy5v
Referenznummer: 3306_17
Finde Angebote wie dieses
Hier geht es zu unserem Impressum, den Allgemeinen Geschäftsbedingungen, den Hinweisen zum Datenschutz und nutzungsbasierter Online-Werbung.