
fundamentis GmbH
Marco Boser
085 ···
Nr. anzeigenPreise & Kosten
Provision für Käufer
3,57% inkl. MwSt. vom notariell verbrieften Kaufpreis
Lage
Dieses schöne Reiheneckhaus befindet sich in einer ruhigen Sackgasse. Ideal für alle, die Ruhe aber auch die Nähe zum Zentrum suchen und schätzen. Die Lage ist äußerst attraktiv, da alle wichtigen Einrichtungen des täglichen Bedarfs in unmittelbarer Nähe liegen. Das Klinikum Passau ist fußläufig schnell erreichbar.
Die...
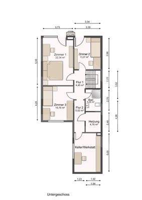
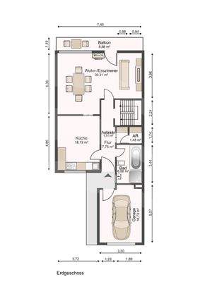
Das Haus
Kategorie
Reihenendhaus
Baujahr
1976
Bezug
sofort
Energie & Heizung
Warum sehe ich diese Anzeige? – Du siehst diese Anzeige basierend auf Ihrer Navigation auf unserer Website und den Suchkriterien, die du verwendet hast.
Weitere Energiedaten
Heizungsart
offener Kamin
Details
Objektbeschreibung
Dieses Grundstück ist aufgrund seiner einzigartigen Lage in der Stadt Passau ein Juwel. Ruhig und idyllisch in einer Sackgasse gelegen ist es eine absolute Rarität. Bebaut ist es derzeit mit einem Reiheneckhaus, welches sanierungsbedürftig ist. Im Zuge einer Kernsanierung kann hier Wohnraum entstehen, der Neubau-Charakter hat...
Ausstattung
Die Raumaufteilung kann im Zuge der Kernsanierung entsprechend den Bedürfnissen individuell gestaltet werden.
Weitere Informationen
Energiepass
Energieausweis wird bei Besichtigung vorgelegt.
Stichworte
Anzahl der Schlafzimmer: 3, Anzahl der Badezimmer: 2, Anzahl Balkone: 1, Bundesland: Bayern, Distanz zum Hauptbahnhof: 2.06, Distanz zur Autobahn: 6.0, Distanz zum Bus: 0.13
Anbieter der Immobilie
fundamentis GmbH
Alte Straße 88, 94034 Passau
Online-ID: 2nbcf5u
Referenznummer: 1464MB
Finde Angebote wie dieses
Hier geht es zu unserem Impressum, den Allgemeinen Geschäftsbedingungen, den Hinweisen zum Datenschutz und nutzungsbasierter Online-Werbung.