
RE/MAX Lörrach, Weil am Rhein, Müllheim, Freiburg
Herr Samuel Grauer
004 ···
Nr. anzeigenPreise & Kosten
Provision für Käufer
3,57% inkl. MwSt.
Lage
Todtmoos liegt im Süden des Hochschwarzwaldes im oberen Wehratal. Das Gemeindegebiet erstreckt sich über eine Höhenlage von 700 m im Wehratal bis 1263 m. In der Ortsmitte bietet sich dem Gast zur Erholung ein schöner Kurpark und die Kurpromenade mit zahlreichen Geschäften und gemütlichen Straßencafés. 100 km ausgeschilderte...
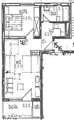
Die Wohnung
Wohnanlage
Energie & Heizung
Warum sehe ich diese Anzeige? – Du siehst diese Anzeige basierend auf Ihrer Navigation auf unserer Website und den Suchkriterien, die du verwendet hast.
Energieausweistyp
Verbrauchsausweis
Gebäudetyp
Wohngebäude
Baujahr laut Energieausweis
1982
Wesentliche Energieträger
ELEKTRO
Gültigkeit
bis 27.08.2029
Effizienzklasse
C
Endenergieverbrauch
92,80 kWh/(m²·a)
Weitere Energiedaten
Energieträger
Elektro
Heizungsart
Etagenheizung
Details
Objektbeschreibung
Diese lichtdurchflutete 2-Zimmer-Wohnung besticht durch ihre großzügige Raumaufteilung und ihre idyllische Lage, die ideal für all jene ist, die Natur und Freizeit genießen möchten. Das große Wohnzimmer bietet ausreichend Platz für einen gemütlichen Wohnbereich und einen separaten Essplatz. Vom Wohnzimmer aus erreichen Sie...
Ausstattung
Wohnzimmer
Schlafzimmer
Badezimmer mit Wanne
Küche
Preisinformation
1 Tiefgaragenstellplatz, Kaufpreis: 9.000,00 EUR
Weitere Informationen
Sonstiges
Verpassen Sie keine Immobilie mehr!
Unser komplettes Immobilienangebot finden Sie immer zuerst auf www.remax.de
Gerne helfen wir Ihnen auch beim Verkauf oder der Vermietung Ihrer Immobilie.
===
Never miss a property again!
You will always find our complete real estate offer first on...
Anbieter der Immobilie
RE/MAX Lörrach, Weil am Rhein, Müllheim, Freiburg
Tumringer Straße 284, 79539 Lörrach
Online-ID: 2nbap5d
Referenznummer: 1067-705-1-SG
Finde Angebote wie dieses
Hier geht es zu unserem Impressum, den Allgemeinen Geschäftsbedingungen, den Hinweisen zum Datenschutz und nutzungsbasierter Online-Werbung.