
etc.pepe Plan GmbH
015 ···
Nr. anzeigenPreise & Kosten
Provision für Käufer
Bitte beachte, das Angebot kann bei Vertragsabschluss die Zahlung einer Provision beinhalten. Weitere Informationen erhältst Du vom Anbieter.
Lage
Die Wohnung befindet sich inmitten der historischen Altstadt von Nördlingen, einer der wenigen vollständig erhaltenen und begehbaren Stadtmauern Europas. Die Kombination aus mittelalterlicher Struktur, gewachsener Infrastruktur und hoher Lebensqualität macht den Standort besonders attraktiv - sowohl für Eigennutzer als auch...
Die Wohnung
Wohnungslage
Erdgeschoss
Bezug
Q4 2027
Energie & Heizung
Warum sehe ich diese Anzeige? – Du siehst diese Anzeige basierend auf Ihrer Navigation auf unserer Website und den Suchkriterien, die du verwendet hast.
Weitere Energiedaten
Heizungsart
Zentralheizung
Details
Objektbeschreibung
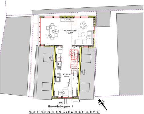
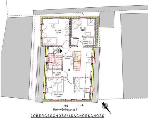
Diese großzügige 3-Zimmer-Eigentumswohnung mit ca. 111,92 m² Wohnfläche entsteht im Rahmen der denkmalgerechten Kernsanierung eines historischen Stadthauses in zentraler Altstadtlage von Nördlingen.
Die dargestellten Bilder sind visualisierte Beispielansichten nach geplanter Fertigstellung und wurden teilweise unter...
Ausstattung
Die Ausstattung orientiert sich an einem gehobenen, zeitlosen Standard:
Fußbodenheizung in allen Wohnräumen (alternativ Plattenheizkörper bei baulicher Notwendigkeit)
Zentral betriebene Hybrid-Heizungsanlage (Gas/Luft-Wärmetauscher)
Hochwertiger Bodenbelag nach Bemusterung
Modernes Bad mit...
Weitere Informationen
Sonstiges
Die Wohnung wird schlüsselfertig im Rahmen einer denkmalgerechten Sanierung übergeben. Grundlage der Ausführung ist die detaillierte Baubeschreibung, welche die qualitative und technische Ausstattung verbindlich regelt.
Der Verkauf erfolgt im Ist-Zustand gemäß Teilungserklärung und notarieller Abwicklung...
Anbieter der Immobilie
Online-ID: 2nb885q
Referenznummer: 155-WHG03
Finde Angebote wie dieses
Hier geht es zu unserem Impressum, den Allgemeinen Geschäftsbedingungen, den Hinweisen zum Datenschutz und nutzungsbasierter Online-Werbung.