
Mückenheim Immobilien GmbH
Frau Luka Ruske
+49 ···
Nr. anzeigenPreise & Kosten
Provision für Käufer
5,95 % inkl. MwSt.
Die Käuferprovision in Höhe von 5,95% inkl. MwSt. ist verdient und fällig mit Beurkundung des notariellen Kaufvertrages.
Lage
Das angebotene Objekt befindet sich im beliebten Teil von Ammendorf, einer ruhigen Wohnlage im Süden von Halle (Saale). Der Stadtteil zeichnet sich durch seine gute Erreichbarkeit, familienfreundliche Umgebung und eine gewachsene Infrastruktur aus. In der näheren Umgebung befinden sich Einkaufsmöglichkeiten, Haltestellen des...
Das Haus
Kategorie
Mehrfamilienhaus
Baujahr
1929
Bezug
sofort
Derzeitige Nutzung
vermietet
Energie & Heizung
Warum sehe ich diese Anzeige? – Du siehst diese Anzeige basierend auf Ihrer Navigation auf unserer Website und den Suchkriterien, die du verwendet hast.
Energieausweistyp
Bedarfsausweis
Gebäudetyp
Wohngebäude
Wesentliche Energieträger
Gas
Gültigkeit
seit 15.05.2020
Effizienzklasse
C
Endenergiebedarf
97,70 kWh/(m²·a)
Weitere Energiedaten
Haustyp
Massivhaus
Energieträger
Gas
Heizungsart
Zentralheizung
Details
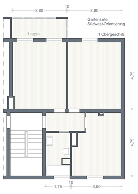
Objektbeschreibung
Das angebotene Mehrfamilienhaus erstreckt sich über zwei Etagen mit insgesamt 269,52 m² Wohnfläche verteilt auf 3 Wohneinheiten. Auf der einen Seite befindet sich pro Etage je eine Wohnung, welche circa 62 m² groß sind. Die Wohnungen sind überwiegend identisch geschnitten und verfügen über 2 Zimmer, ein Bad sowie eine...
Ausstattung
Die Maisonette-Wohnung wurde in den vergangenen Jahren umfangreich saniert und präsentiert sich heute in einem guten und zeitgemäßen Zustand. Die anderen Einheiten sind teilweise renovierungsbedürftig und bieten attraktives Potenzial für individuelle Aufwertungen und Mietanpassungen.
Die Ausstattung der Wohnungen ist...
Preisinformation
Ist-Mieteinnahmen pro Jahr: 22.638,00 EUR
Weitere Informationen
Sonstiges
Alle Angaben sind ohne Gewähr und basieren ausschließlich auf Informationen, die uns von unserem Auftraggeber übermittelt wurden. Wir übernehmen keine Gewähr für die Vollständigkeit, Richtigkeit und Aktualität dieser Angaben. Zwischenverkauf bleibt vorbehalten. Sollte Ihnen das von uns nachgewiesene Objekt...
Anbieter der Immobilie
Mückenheim Immobilien GmbH
Am Kirchtor 27, 06108 Halle (Saale)
Online-ID: 2nb7k5z
Referenznummer: 128624548#rXRm3Z
Finde Angebote wie dieses
Hier geht es zu unserem Impressum, den Allgemeinen Geschäftsbedingungen, den Hinweisen zum Datenschutz und nutzungsbasierter Online-Werbung.