

Immobilien Weber-Moewius
Herr Philip Weber-Moewius
004 ···
Nr. anzeigenPreise & Kosten
Provision für Käufer
3,57 % Käuferprovision inkl. gesetzlicher MwSt.
Lage
Die Gemeinde Much liegt im Bergischen Land ca. 30 km nordöstlich von Bonn und ca. 35 km östlich von Köln, nahe der Grenze zum Oberbergischen Kreis. In der Region vereint sich die besondere Positionierung zwischen betriebsamen Großstädten mit dem hohen Erholungsfaktor der reizvollen Naturlandschaft zu einer ausgewogenen...
Das Haus
Kategorie
Mehrfamilienhaus
Baujahr
1982
Bezug
nach Absprache
Derzeitige Nutzung
vermietet
Energie & Heizung
Warum sehe ich diese Anzeige? – Du siehst diese Anzeige basierend auf Ihrer Navigation auf unserer Website und den Suchkriterien, die du verwendet hast.
Weitere Energiedaten
Energieträger
Gas
Heizungsart
offener Kamin, Zentralheizung
Details
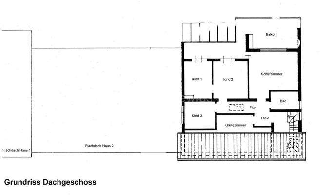
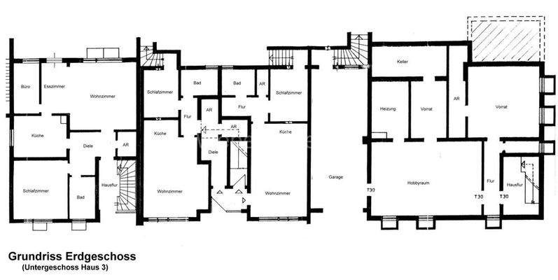
Objektbeschreibung
Mit diesem Angebot präsentieren wir Ihnen ein architektonisches Gesamtensemble, bestehend aus einem Zweifamilienhaus, einem Wohn- und Geschäftshaus sowie einem Einfamilienhaus.
Die vollständig vermieteten Häuser 1 und 2 wurden im Jahr 1976 auf zwei benachbarten Grundstücken mit Flächen von 812 m² bzw. 711 m² in solider...
Ausstattung
Nachfolgend einige Bau- und Ausstattungsdetails im kurzen Überblick:
Haus 1
- Zweifamilienhaus auf einem 812 m² großen Grundstück
- 173,68 m² Wohnfläche (zzgl. anteilige Fläche Balkon und Nutzfläche)
- Baujahr 1976
- Putzfassade (Fassadenanstrich 2015)
- Dach: Flachdach (Dachdämmung 2017)
- Unter-...
Preisinformation
9 Stellplätze
9 Garagenstellplätze
Soll-Mieteinnahmen pro Jahr: 62.040,00 EUR
Ist-Mieteinnahmen pro Jahr: 34.380,00 EUR
Weitere Informationen
Sonstiges
Sie möchten Ihre Immobilie verkaufen?
Wir bringen Sie mit unserem Rundum-Sorglos-Service schnell und sicher zum Erfolg!
Seit 1991 steht unser Familienunternehmen Eigentümern vertrauensvoll beim Verkauf ihrer Immobilie zur Seite. Unsere Stärken sind eine exzellente Marktkenntnis, umfangreicher...
Anbieter der Immobilie
Immobilien Weber-Moewius
Zeithstraße 127, 53819 Neunkirchen-Seelscheid

Online-ID: 2nb6e5v
Referenznummer: 3401
Finde Angebote wie dieses
Hier geht es zu unserem Impressum, den Allgemeinen Geschäftsbedingungen, den Hinweisen zum Datenschutz und nutzungsbasierter Online-Werbung.