

ITTB InvesTeamBerlin Immobilien GmbH
Frau Annika Bassi Herr Andrea Bassi
+49 ···
Nr. anzeigenPreise & Kosten
Provision für Käufer
3.57 % inkl. MwSt.
Lage
Die Immobilie befindet sich in einer ruhigen, gutbürgerlichen Wohngegend im grünen Berlin-Lichterfelde Süd, direkt an der Stadtgrenze zu Teltow. Die Umgebung ist geprägt von gepflegten Altbauten, Einfamilienhäusern und großzügigen Grünflächen ein ideales Umfeld für ein langfristiges Investment.
Nur wenige Gehminuten...
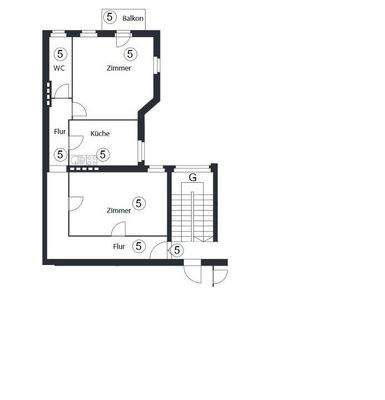
Die Wohnung
Wohnungslage
1. Geschoss
Bezug
vermietet
Derzeitige Nutzung
vermietet
Wohnanlage
Energie & Heizung
Warum sehe ich diese Anzeige? – Du siehst diese Anzeige basierend auf Ihrer Navigation auf unserer Website und den Suchkriterien, die du verwendet hast.
Energieausweistyp
Verbrauchsausweis
Gebäudetyp
Wohngebäude
Wesentliche Energieträger
Gas
Gültigkeit
01.06.2018 bis 31.05.2028
Effizienzklasse
F
Endenergieverbrauch
179,00 kWh/(m²·a)
Weitere Energiedaten
Energieträger
Gas
Heizungsart
Etagenheizung
Details
Objektbeschreibung
Diese wunderschöne Altbauwohnung ist vermietet und wird als Kapitalanlage verkauft.
Eine Eigenbedarfskündigung ist für die nächsten 10 Jahre ausgeschlossen.
Sie liegt im 1. Obergeschoss und verfügt über 2 Zimmer, ein Tageslichtbad,
hohe Decken und einen Balkon mit schönem Blick in die ruhige und grüne...
Preisinformation
Ist-Mieteinnahmen pro Jahr: 4.680,00 EUR
Weitere Informationen
Stichworte
Anzahl der Badezimmer: 1, 3 Etagen
Anbieter der Immobilie
ITTB InvesTeamBerlin Immobilien GmbH
Alt-Rudow 43, 12357 Berlin

Online-ID: 2nb675n
Referenznummer: 7207
Finde Angebote wie dieses
Hier geht es zu unserem Impressum, den Allgemeinen Geschäftsbedingungen, den Hinweisen zum Datenschutz und nutzungsbasierter Online-Werbung.