Schwabenhaus Travemünde - Torsten Liedtke

Herrn Torsten Liedtke

Bauen mit Vertrauen: Die Zukunft für Ihre Familie

€ 509.000
Kaufpreis
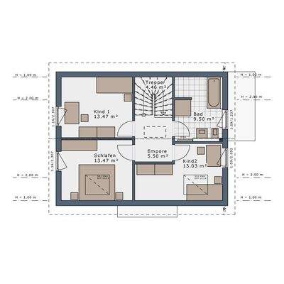
119 m²
Wohnfläche ca.
4
Zimmer
927 m²
Grundstücksfl. ca.

Der Anbieter dieses Objekts hat gegenüber der AVIV Germany GmbH als Betreiber dieses Online-Marktplatzes erklärt, nicht als Unternehmer im Sinne des § 1 KSchG zu handeln. Die im Verbraucherschutzrecht der Union verankerten Verbraucherrechte (insbesondere Informationspflichten und Rücktritts- bzw. Widerrufsrechte) finden auf den Vertrag zwischen dem Anbieter des Objekts und Ihnen (dem Interessenten) keine Anwendung.

Provisionsfrei
Gewerblicher Anbieter

Der Anbieter dieses Objekts hat gegenüber der AVIV Germany GmbH als Betreiber dieses Online-Marktplatzes erklärt, als Unternehmer im Sinne des § 1 KSchG zu handeln.

AdresseStraße nicht freigegeben
23715 Bosau 
Auf Karte ansehen

Preise & Kosten

Kaufpreis € 509.000

Provision für Käufer

provisionsfrei

Lage

Grundstück in Bosau am Plöner See

Das Haus

Kategorie

Einfamilienhaus

  • Zustand: Neubau, projektiert
  • Gäste-WC

Energie & Heizung

Weitere Energiedaten

Heizungsart

Fußbodenheizung

Details

Objektbeschreibung

Herzlich willkommen in Ihrem neuen Zuhause, das speziell für familienorientierte Kunden wie Sie gestaltet wurde. Diese Immobilie ist der ideale Ort, um gemeinsame Erinnerungen zu schaffen und ein harmonisches Familienleben zu führen.

Das Haus bietet ausreichend Platz für Ihre Familie, um zu Wachsen und Gedeihen. Mit...

Mehr anzeigen

Ausstattung

Neben kurzen Bauzeiten, innovativer Haustechnik, attraktiver Architektur und hochwertiger Manufaktur-Qualität bietet Ihnen das angebotene Schwabenhaus im "Green-Edition" All-Inclusive-Paket folgende Mehr-Werte:

- Bodenplatte inkl. Effizienzhaus 55 Perimeter-Dämmung unterhalb der Bodenplatte sowie stirnseitig
-...

Mehr anzeigen

Weitere Informationen

Sonstiges
Das Haus ist projektiert inkl. Grundstück. Das Grundstück wird in Kommission angeboten bzw. direkt von Dritten verkauft. Daher kann der o.g. Preis aufgrund aktueller Marktsituationen schwanken.

Die Bauabwicklung kann kurzfristig nach Grundstückserwerb begonnen werden. Bilder zeigen möglicherweise...

Mehr anzeigen

Anbieter der Immobilie

Schwabenhaus Travemünde - Torsten Liedtke

Am Obstgarten 14, 23858 Reinfeld

user

Herrn Torsten Liedtke

Dein Ansprechpartner

Anbieter-Website Anbieter-Profil Anbieter-Impressum

Online-ID: 2nb4q5x

Referenznummer: SH-374623

Finde Angebote wie dieses

imageimageimage

Hier geht es zu unserem Impressum, den Allgemeinen Geschäftsbedingungen, den Hinweisen zum Datenschutz und nutzungsbasierter Online-Werbung.