
Debeka Bausparkasse AG
Herr Robin Zach
Kontaktiere den Anbieter schriftlich, es ist keine Telefonnummer hinterlegt.
Preise & Kosten
Provision für Käufer
3,57% inkl. MwSt.
Lage
Das Zweifamilienhaus befindet sich im beliebten Hückelhovener Ortsteil Schaufenberg - einer ruhigen und gewachsenen Wohngegend. Hier genießen Sie die Vorzüge einer familienfreundlichen Umgebung mit guter Infrastruktur.
Einkaufsmöglichkeiten für den täglichen Bedarf, Kindergärten und Schulen sind in wenigen Minuten...
Das Haus
Kategorie
Mehrfamilienhaus
Baujahr
1968
Bezug
nach Absprache
Energie & Heizung
Warum sehe ich diese Anzeige? – Du siehst diese Anzeige basierend auf Ihrer Navigation auf unserer Website und den Suchkriterien, die du verwendet hast.
Energieausweistyp
Bedarfsausweis
Gebäudetyp
Wohngebäude
Wesentliche Energieträger
Öl
Gültigkeit
29.07.2025 bis 28.07.2035
Effizienzklasse
E
Endenergiebedarf
131,10 kWh/(m²·a)
Weitere Energiedaten
Energieträger
Öl
Heizungsart
Zentralheizung
Details
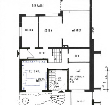
Objektbeschreibung
Das im Jahr 1968 erbaute Haus wurde 1986 um ein Obergeschoss erweitert und präsentiert sich heute als großzügiges Zweifamilienhaus mit viel Platz für verschiedene Wohnkonzepte.
Erdgeschosswohnung
Im Erdgeschoss betreten Sie die Wohnung über die zentrale Diele, die eine praktische Verbindung zu allen Räumen...
Ausstattung
- Baujahr 1968
- Aufstockung Obergeschoss 1986
- teilunterkellert
- Ölheizung mit Solarthermie aus 2005
- Garage 1980 angebaut
- Bodenbeläge überwiegend aus 2000
- Fenster Obergeschoss 1986
- Fenster Erdgeschoss 1995
- Klimaanlage im Wohnzimmer und im Schlafzimmer
- Terrasse 2010 erneuert
- Bad...
Weitere Informationen
Sonstiges
Die genannten Informationen beruhen auf den Angaben des Verkäufers. Für die Richtigkeit und Vollständigkeit der Angaben wird keine Gewähr oder Haftung übernommen.
Seit dem 25. Mai 2018 gilt in Deutschland die EU-Datenschutz-Grundverordnung (DS-GVO). Sie regelt, wie private Unternehmen und öffentliche...
Anbieter der Immobilie

Debeka Bausparkasse AG
Debeka-Platz 2, 56073 Koblenz
Herr Robin Zach
Dein Ansprechpartner
Kontaktiere den Anbieter schriftlich, es ist keine Telefonnummer hinterlegt.
Online-ID: 2nb3p5s
Referenznummer: 1008246#4Fd7ty
Finde Angebote wie dieses
Hier geht es zu unserem Impressum, den Allgemeinen Geschäftsbedingungen, den Hinweisen zum Datenschutz und nutzungsbasierter Online-Werbung.