
Hofmann Immobilien GmbH
Herr Hofmann
091 ···
Nr. anzeigenPreise & Kosten
Provision für Käufer
1,785 % vom Kaufpreis (inkl. ges. MwSt.), fällig bei Abschluss eines notariellen Kaufvertrages.
Lage
Die 3,5-Zimmer-Wohnung liegt in beliebter und ruhiger Lage von Hemhofen. Die Ortschaft Hemhofen verfügt über eine sehr gute Infrastruktur. Zahlreiche Einkaufmöglichkeiten, Ärzte, Apotheke, Kindergarten und Grundschule sind vorhanden.
Eine gute Verkehrsanbindung ist sowohl mit den öffentlichen Verkehrsmitteln als auch...
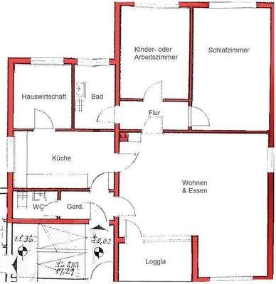
Die Wohnung
Wohnungslage
1. Geschoss
Bezug
kurzfristig möglich
Derzeitige Nutzung
frei
Wohnanlage
Energie & Heizung
Warum sehe ich diese Anzeige? – Du siehst diese Anzeige basierend auf Ihrer Navigation auf unserer Website und den Suchkriterien, die du verwendet hast.
Energieausweistyp
Verbrauchsausweis
Gebäudetyp
Wohngebäude
Baujahr laut Energieausweis
1976
Wesentliche Energieträger
Öl
Gültigkeit
03.07.2018 bis 03.07.2028
Effizienzklasse
C
Endenergieverbrauch
95,00 kWh/(m²·a)
Weitere Energiedaten
Energieträger
Öl
Heizungsart
Zentralheizung
Details
Objektbeschreibung
Die gut geschnittene 3,5-Zimmer-Wohnung befindet sich im ersten Obergeschoss einer kleinen und gepflegten Wohnanlage. In dem ca. 35 m² großen Wohn- und Essbereich ist Parkettboden verlegt. Ausgehend von diesem gelangt man auf den nach Süden ausgerichteten Balkon.
Mit im Kaufpreis enthalten ist die moderne Einbauküche...
Weitere Informationen
Heizung
Die Heizung und Warmwasserversorgung erfolgen mittels einer Öl-Zentralheizung, die im Jahr 2014 erneuert wurde.
Sonstiges
Durch zahlreiche Renovierungen befindet sich die Wohnung in einem guten Zustand. U. a. wurden folgende Maßnahmen durchgeführt:
- ca. 2011: Renovierung des Badezimmers
- ca...
Anbieter der Immobilie
Hofmann Immobilien GmbH
Fichtestr. 15, 91054 Erlangen
Online-ID: 2nazq5w
Referenznummer: 1097
Finde Angebote wie dieses
Hier geht es zu unserem Impressum, den Allgemeinen Geschäftsbedingungen, den Hinweisen zum Datenschutz und nutzungsbasierter Online-Werbung.