
Wohnungsbörse Erzgebirge GmbH
Herr Mario Bley
004 ···
Nr. anzeigenPreise & Kosten
Provision für Käufer
3,57?% des Kaufpreises inkl. der gesetzlichen Mehrwertsteuer
Lage
Die Immobilie befindet sich in Neukirchen/Erzgebirge in verkehrsgünstiger Lage nahe Chemnitz. Die Region zeichnet sich durch eine stabile Wirtschaftsstruktur sowie eine gute Erreichbarkeit über die Bundesstraße B169 und die nahegelegene Anbindung an die A72 aus.
Chemnitz ist in wenigen Fahrminuten erreichbar und bietet...
Das Haus
Bezug
nach Absprache
Energie & Heizung
Warum sehe ich diese Anzeige? – Du siehst diese Anzeige basierend auf Ihrer Navigation auf unserer Website und den Suchkriterien, die du verwendet hast.
Wärme
Strom
Energieausweistyp
Verbrauchsausweis
Gebäudetyp
Nicht-Wohngebäude
Baujahr laut Energieausweis
1990
Wesentliche Energieträger
OEL
Gültigkeit
bis 22.02.2036
Endenergieverbrauch (Wärme)
100,30 kWh/(m²·a)
Endenergieverbrauch (Strom)
20,60 kWh/(m²·a)
Details
Objektbeschreibung
Zum Verkauf steht ein vielseitig nutzbares Gewerbeobjekt in zentraler Lage von 09221 Neukirchen/Erzgebirge. Die Immobilie wurde ursprünglich als Supermarkt errichtet und im Zuge einer umfassenden Umnutzung zu einem modernen, funktional strukturierten Gewerbestandort mit großzügigen Büro-, Werkstatt- und Lagerflächen...
Ausstattung
Eckdaten
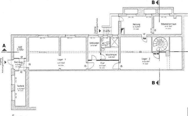
-Gewerbefläche: ca. 624 m²
-Grundstück: ca. 1.709 m²
-Teilunterkellert
-Separates Nebengebäude
-Eingefriedetes Grundstück
-Großzügiger Parkplatzbereich
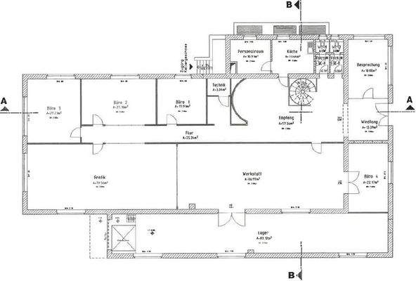
Erdgeschoss - ca. 451 m² Nutzfläche
-Repräsentativer Eingangs- und Empfangsbereich (57,26 m²)
-4 Büroräume (gesamt ca. 94,83...
Preisinformation
13 Stellplätze
Weitere Informationen
Sonstiges
Provision:
3,57?% des Kaufpreises inkl. der gesetzlichen Mehrwertsteuer, fällig und verdient mit Abschluss des notariellen Kaufvertrags.
Hinweis zur Vermarktung:
Die Vermarktung dieser Immobilie erfolgt im Rahmen eines exklusiven Alleinauftrags. Besichtigungen sind daher ausschließlich über uns...
Anbieter der Immobilie
Online-ID: 2nazh5n
Referenznummer: 9756
Finde Angebote wie dieses
Hier geht es zu unserem Impressum, den Allgemeinen Geschäftsbedingungen, den Hinweisen zum Datenschutz und nutzungsbasierter Online-Werbung.