

DÜRING | DÜRING & Kollegen
Herr Alexander Düring
097 ···
Nr. anzeigenPreise & Kosten
Provision für Käufer
provisionsfrei
Abschreibung/Anlage
Denkmalschutz-Afa
Lage
Die Immobilie befindet sich in Ostheim vor der Rhön. In der Umgebung befinden sich die Orte, Mellrichstadt und Fladungen.
Fußläufig von der Immobilie entfernt erreichen Sie verschiedene Restaurants, Bäckereien, zwei Ärzte und mehrere Grün- und Parkanlagen.
Modegeschäfte, Fitnessstudios, Museen und eine Buchhandlung...
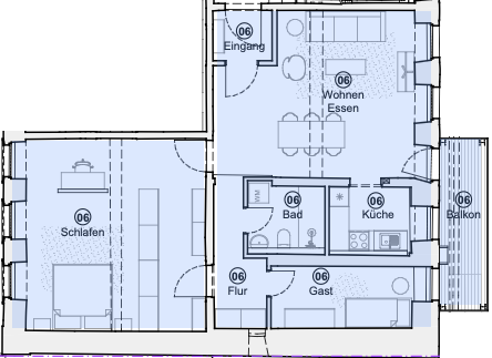
Die Wohnung
Bezug
2028
Energie & Heizung
Warum sehe ich diese Anzeige? – Du siehst diese Anzeige basierend auf Ihrer Navigation auf unserer Website und den Suchkriterien, die du verwendet hast.
Energieausweis: für diesen Gebäudetyp nicht notwendig
Weitere Energiedaten
Energieträger
Fernwärme
Heizungsart
Zentralheizung
Details
Objektbeschreibung
Objektbeschreibung:
Diese ansprechenden Wohnungen in der historischen Innenstadt
von Ostheim v.d. Rhön überzeugen durch eine gehobene Innenausstattung mit historischem Ambiente. Die teils mit Stuckdecken und weiteren historischen Gebäudedetails ausgestatteten Wohnungen im ansehnlichen Einzeldenkmal
"Altes Amtshaus"...
Ausstattung
Die Innenausstattung erfolgt im Rahmen der Denkmalschutzvorgaben mit maximal möglichem Erhalt historischer Bausubstanz, wie original Dielenböden und originalen Innentüren, ergänzt durch moderne Sanitärausstattung und zeitgemäßer technischer Einrichtungen gemäß der nötigen bautechnischen und gesetzlichen Vorgaben.
Alle...
Weitere Informationen
Sonstiges:
Durch die besonderen Abschreibungsmöglichkeiten im Rahmen der Denkmalförderung, bzw. Sanierungsförderung (abhängig von Zeitpunkt des Erwerbs, Grad der Fertigstellung und geplanter Nutzung und pers. Verhältnissen) ist diese Immobilie besonders attraktiv für Kapitalanleger wie auch für Eigennutzer.
Einzelheiten...
Anbieter der Immobilie

Online-ID: 2nayb5l
Finde Angebote wie dieses
Hier geht es zu unserem Impressum, den Allgemeinen Geschäftsbedingungen, den Hinweisen zum Datenschutz und nutzungsbasierter Online-Werbung.