
CENTURY 21 WohnManufaktur
Herr Peter Polnik
033 ···
Nr. anzeigenPreise & Kosten
Provision für Käufer
3.57% inkl. MwSt.
Die Käuferprovision beträgt 3,57 % des Kaufpreises inkl. 19% MwSt.
Lage
Die Immobilie befindet sich im charmanten Oranienburger Ortsteil Lehnitz, eingebettet in eine idyllische Brandenburger Landschaft. Gelegen in einer gepflegten Einfamilienhaussiedlung, zeichnet sich die Lage durch eine Besonderheit aus: Das Haus steht in einer ruhigen Straße, die als Sackgasse endet. Dadurch genießen Sie eine...
Das Haus
Kategorie
Einfamilienhaus
Baujahr
1957
Energie & Heizung
Warum sehe ich diese Anzeige? – Du siehst diese Anzeige basierend auf Ihrer Navigation auf unserer Website und den Suchkriterien, die du verwendet hast.
Energieausweistyp
Verbrauchsausweis
Gebäudetyp
Wohngebäude
Baujahr laut Energieausweis
1957
Wesentliche Energieträger
GAS
Effizienzklasse
D
Endenergieverbrauch
120,90 kWh/(m²·a)
Weitere Energiedaten
Energieträger
Gas
Heizungsart
Zentralheizung
Details
Objektbeschreibung
Zum Verkauf steht ein charmantes, im Jahr 1957 in massiver Bauweise errichtetes Einfamilienhaus, das sich als perfektes Domizil für Singles oder Paare präsentiert, die Ruhe und Naturverbundenheit suchen. Die Immobilie befindet sich im begehrten Oranienburger Ortsteil Lehnitz und besticht durch ein außergewöhnlich großzügiges...
Ausstattung
+Haustyp: Einfamilienhaus+
+Baujahr: 1957+
+Grundstücksfläche: ca. 900 m² (teilerschlossen)+
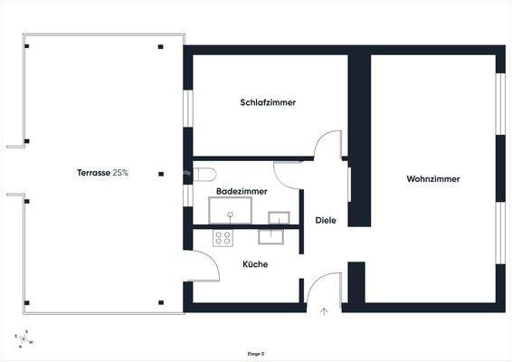
+Wohnfläche: ca. 67,40 m² (2 Zimmer)+
+Nutzfläche: ca. 51,92 m² (Keller)+
+Wasserversorgung: Autark über Brunnenwasser+
+Heizung: Gas-Zentralheizung (130-Liter-Kessel)+
+Zustand: Laufend saniert (ab 2015)...
Preisinformation
2 Stellplätze
Weitere Informationen
Sonstiges
Gerne stellen wir Ihnen das Objekt im Zuge einer Besichtigung vor.
Sämtliche Angaben zu diesem Objekt dienen einer ersten Information.
Das Exposé zu diesem Angebot und die darin gemachten Angaben in Wort, Bild und Werten stellen keine Beschaffenheitsvereinbarung...
Dokumente
Anbieter der Immobilie
CENTURY 21 WohnManufaktur
André-Pican-Straße 16, 16515 Oranienburg
Online-ID: 2nawl5h
Referenznummer: C21_PPOL_47524
Finde Angebote wie dieses
Hier geht es zu unserem Impressum, den Allgemeinen Geschäftsbedingungen, den Hinweisen zum Datenschutz und nutzungsbasierter Online-Werbung.