
Robert C. Spies Industrial Real Estate GmbH & Co. KG
Herr Stefan Fath
+49 ···
Nr. anzeigenPreise & Kosten
zzgl. Nebenkosten
Provision für Mieter
provisionsfrei
Warum sehe ich diese Anzeige? – Du siehst diese Anzeige basierend auf Ihrer Navigation auf unserer Website und den Suchkriterien, die du verwendet hast.
Lage
Das Objekt befindet sich im GVZ Bremen und ist strategisch hervorragend gelegen.
Die Autobahn A281 kann innerhalb weniger Minuten erreicht werden. Ebenso befindet sich das Stadtzentrum von Bremen nur wenige Autominuten entfernt. Der Flughafen Bremen liegt ca. 6km entfernt.
Der Standort profitiert von unzähligen...
Die Industriefläche
Kategorie
Logistikzentrum
Bezug
Q2 2026
Details
Ausstattung
Die Immobilie zeichnet sich u.a. durch folgende Ausstattungsmerkmale aus:
- Hallenhöhe ca. 6,10 - 8,90 m UKB
- 38 Heckandienungstore
- 2 ebenerdige Sektionaltore
- ESFR-Sprinkleranlage
- LED-Beleuchtung
- Gas-Dunkelstrahler
Weitere Informationen
Sonstiges
Verfügbarkeit: März 2026
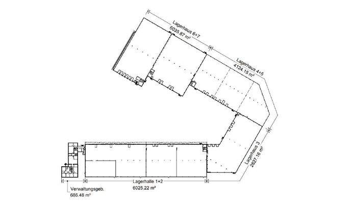
Hallenflächen:
Halle 1+2: ca. 6.025 m²
Halle 3: ca. 2.827 m²
Halle 4+5: ca. 4.124 m²
Halle 6+7: ca. 6.035 m²
Insgesamt: ca. 19.012 m²
Büro- und Sozialfläche: ca. 686 m²
Mietzins: ab 4,90 EUR/m²
Provisionsfrei für den Mieter
Weitere...
Anbieter der Immobilie
Online-ID: 2nav35y
Referenznummer: 33142/1
Finde Angebote wie dieses
Hier geht es zu unserem Impressum, den Allgemeinen Geschäftsbedingungen, den Hinweisen zum Datenschutz und nutzungsbasierter Online-Werbung.