
Lindner Immobilien e.K.
Herr Lindner
0 9 ···
Nr. anzeigenPreise & Kosten
Provision für Käufer
Bitte beachte, das Angebot kann bei Vertragsabschluss die Zahlung einer Provision beinhalten. Weitere Informationen erhältst Du vom Anbieter.
Die Wohnung
Wohnungslage
1. Geschoss
Bezug
sofort
Derzeitige Nutzung
frei
Wohnanlage
Energie & Heizung
Warum sehe ich diese Anzeige? – Du siehst diese Anzeige basierend auf Ihrer Navigation auf unserer Website und den Suchkriterien, die du verwendet hast.
Energieausweistyp
Verbrauchsausweis
Gebäudetyp
Wohngebäude
Baujahr laut Energieausweis
1994
Wesentliche Energieträger
Gas
Gültigkeit
10.11.2018 bis 10.11.2028
Effizienzklasse
D
Endenergieverbrauch
125,00 kWh/(m²·a)
Weitere Energiedaten
Heizungsart
Zentralheizung
Details
Preisinformation
Der Käufer zahlt 2,38 % (inkl.19% Mwst.) vom Kaufpreis nach notariellen Kaufvertragsabschluß an den Makler, der Fa. Lindner Immobllien e.K., Luitpoldstr. 10, 97421 Schweinfurt.
Der Verkäufer zahlt 2,38 % (inkl.19% Mwst.) vom Kaufpreis nach notariellen Kaufvertragsabschluß an den Makler, der Fa. Lindner Immobllien e.K....
Weitere Informationen
Sofort beziehbar / vermietbar
In einem gepflegten, modernen Mehrfamilienhaus, Bj. 1994, mit 8 Wohneinheiten und Vollwärmeschutz in Schweinfurt nähe Auenschule/Schelmsrasen, ruhige Lage, sucht eine gepflegte 2-ZW mit Südbalkon eine/n neue/n Eigentümer/in.
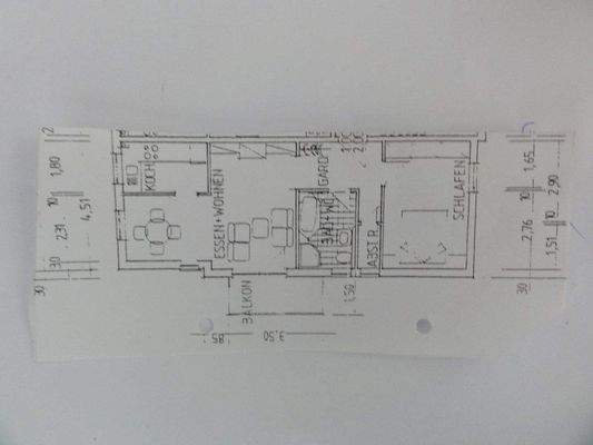
Die Wohnung besteht aus (siehe auch Planskizze)
-...
Anbieter der Immobilie
Online-ID: 2nauz5p
Referenznummer: ETW - frei
Finde Angebote wie dieses
Hier geht es zu unserem Impressum, den Allgemeinen Geschäftsbedingungen, den Hinweisen zum Datenschutz und nutzungsbasierter Online-Werbung.