
Spektrum Sales & Consulting GmbH
Herr Marcel Güntner
052 ···
Nr. anzeigenDieses Angebot ist Teil des Neubauprojekts
Queller Str. 20 Steinhagen - Modernes Wohnen mit niedrigen Energiekosten in ruhiger & zentraler Lage
Preise & Kosten
Provision für Käufer
provisionsfrei
Lage
Lagebeschreibung - Zentrale Wohnlage in Steinhagen
Die Wohnung liegt in der Queller Straße 20 in 33803 Steinhagen und überzeugt durch eine zentrale, familienfreundliche Lage mit kurzen Wegen und ausgezeichneter Infrastruktur.
Direkt neben dem Haus befinden sich ein Netto-Markt sowie Action, sodass Einkäufe des...
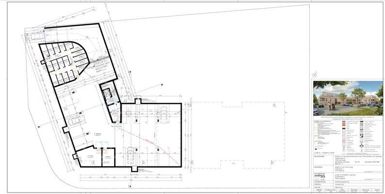
Die Wohnung
Wohnungslage
Erdgeschoss
Bezug
2027
Wohnanlage
Das Neubauprojekt
Details
Objektbeschreibung
Willkommen in deinem neuen Zuhause.
Wohnen im Erdgeschoss mit privatem Garten & moderner Neubauqualität
Die Wohnung wird nach dem QNG-Standard errichtet und erfüllt damit höchste Anforderungen an Energieeffizienz und Nachhaltigkeit. Das sorgt für spürbar niedrigere Energiekosten und eröffnet den Zugang zu...
Ausstattung
Ausstattungsbeschreibung - Hochwertig, modern & nachhaltig
Die Wohnung überzeugt durch eine zeitgemäße und hochwertige Ausstattung, die modernes Wohnen mit Nachhaltigkeit verbindet.
Die Beheizung erfolgt über eine Wärmepumpe, ergänzt durch eine Solaranlage, wodurch dauerhaft niedrige Betriebskosten erzielt...
Preisinformation
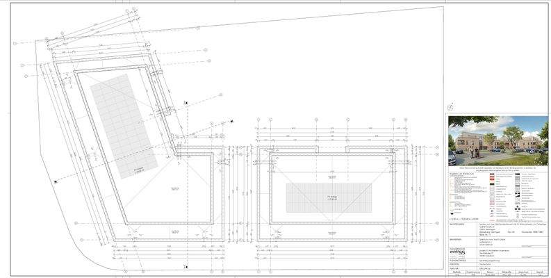
19 Tiefgaragenstellplätze, Kaufpreis je: 25.000,00 EUR
Weitere Informationen
Sonstiges
Finanzielle Highlights
Bis zu 90.000 € Abschreibung in nur 4 Jahren bei dieser Wohnung?
Steuerlicher Vorteil durch Sonder- + Degressive Abschreibungen für Kapitalanleger?
Sonderabschreibung von 5 % jährlich für 4 Jahre auf die gesamten Anschaffungskosten
Degressive AfA von 5 % jährlich für 6 Jahre...
Anbieter der Immobilie
Spektrum Sales & Consulting GmbH
Jüdendamm 2, 33129 Delbrück
Online-ID: 2naqg5q
Referenznummer: Q1.07
Finde Angebote wie dieses
Hier geht es zu unserem Impressum, den Allgemeinen Geschäftsbedingungen, den Hinweisen zum Datenschutz und nutzungsbasierter Online-Werbung.