

Ruf Immobilien
Herr Jürgen Ruf
+49 ···
Nr. anzeigenPreise & Kosten
Provision für Käufer
2,38 % inkl. gesetzlicher MwSt.
Lage
Das Geschäftshaus befindet sich im Gewerbegebiet Lerchenfeld in Schongau.
Die Stadt Schongau mit ca. 12.000 Einwohnern liegt direkt an der Romantischen Straße im Erholungsgebiet Pfaffenwinkel (Landkreis Weilheim-Schongau) und bietet eine hervorragende Infrastruktur.
Das Gewerbegebiet Lerchenfeld liegt am westlichen...
Das Renditeobjekt
Kategorie
Bürogebäude
Baujahr
1995
Energie & Heizung
Warum sehe ich diese Anzeige? – Du siehst diese Anzeige basierend auf Ihrer Navigation auf unserer Website und den Suchkriterien, die du verwendet hast.
Wärme
Strom
Energieausweistyp
Verbrauchsausweis
Gebäudetyp
Nicht-Wohngebäude
Baujahr laut Energieausweis
1995
Wesentliche Energieträger
GAS
Gültigkeit
bis 31.10.2030
Endenergieverbrauch (Wärme)
65,80 kWh/(m²·a)
Endenergieverbrauch (Strom)
1,10 kWh/(m²·a)
Details
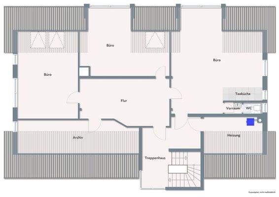
Objektbeschreibung
Das moderne Geschäftshaus verfügt über drei vermietete Gewerbeeinheiten mit insgesamt 526 m² Nutzfläche auf drei Etagen.
Die Liegenschaft befindet sich auf einem ca. 872 m² großen Grundstück im Gewerbegebiet von Schongau-West direkt im Schongauer Fachmarktzentrum mit hervorragender Verkehrsanbindung.
Es ist in einem...
Weitere Informationen
Stichworte
vermietbare Fläche: 526,00 m²
Anbieter der Immobilie
Ruf Immobilien
Münzstr. 14, 86956 Schongau

Online-ID: 2napz5r
Referenznummer: RI-68-2026
Finde Angebote wie dieses
Hier geht es zu unserem Impressum, den Allgemeinen Geschäftsbedingungen, den Hinweisen zum Datenschutz und nutzungsbasierter Online-Werbung.