
Jan Reimers Immobilien GmbH
Herr Jan Reimers
017 ···
Nr. anzeigenPreise & Kosten
Provision für Mieter
2,38 Nettomonatskaltmieten inkl. MwSt. inkl. MwSt.
Warum sehe ich diese Anzeige? – Du siehst diese Anzeige basierend auf Ihrer Navigation auf unserer Website und den Suchkriterien, die du verwendet hast.
Lage
Im Gewerbegebiet Altenstadt mit guter Anbindung an die B17 und B472
Bushaltestelle (100 m), Bahnhof Schongau (3,5 km)
Edeka (1,2 km), Netto (1,4 km)
Die Industriefläche
Kategorie
Lagerhalle
Energie & Heizung
Warum sehe ich diese Anzeige? – Du siehst diese Anzeige basierend auf Ihrer Navigation auf unserer Website und den Suchkriterien, die du verwendet hast.
Wärme
Strom
Energieausweistyp
Bedarfsausweis
Gebäudetyp
Nicht-Wohngebäude
Baujahr laut Energieausweis
1972
Wesentliche Energieträger
HOLZ
Gültigkeit
bis 20.06.2034
Endenergiebedarf (Wärme)
149,00 kWh/(m²·a)
Endenergiebedarf (Strom)
5,70 kWh/(m²·a)
Details
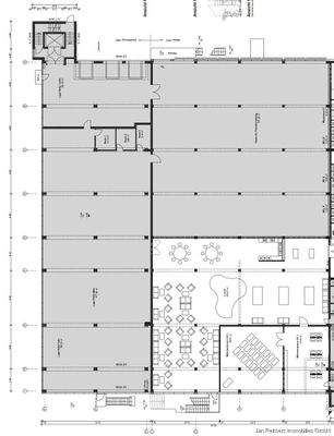
Objektbeschreibung
Diese optimal ausgestattete und frei gestaltbare Gewerbefläche, kann flexibel an Ihre betrieblichen Anforderungen angepasst werden.
Ein Teil der Fläche verfügt über eine lange Fensterfront mit Blick ins Grüne und wäre ideal als Studio oder Büro nutzbar.
Die großzügigen Flächen verfügen über mehrere Laderampen mit...
Ausstattung
- Laderampen mit Anpassrampen & Rolltoren
- Lange Fensterfront (kann sichtdicht gestaltet werden)
- Hallenhöhe 2,60 m - 3 m
- Rangierfläche und Stellplätze vor der Halle
- 2 abgetrennte Büros
- Mittelspannungsanschluss
- PV-Strom abnehmbar
- Lüftungsanlage teils vorhanden, sonst nachrüstbar
-...
Weitere Informationen
Sonstiges
Wir beantworten Ihre Fragen gerne.
Stichworte
Lagerfläche: 1.416,00 m², Gesamtfläche: 1.416,00 m², Freifläche: 240,00 m²
Anbieter der Immobilie

Online-ID: 2namg5l
Referenznummer: RI-032
Finde Angebote wie dieses
Hier geht es zu unserem Impressum, den Allgemeinen Geschäftsbedingungen, den Hinweisen zum Datenschutz und nutzungsbasierter Online-Werbung.