

OVB Immobilien GmbH
Herr Dirk Will
049 ···
Nr. anzeigenPreise & Kosten
Provision für Käufer
provisionsfrei
Lage
Attraktiv und lebendig, liebens- und lebenswert, im Herzen Ostfrieslands = Willkommen in der Seehafenstadt Emden!
Emden ist die größte Stadt Ostfrieslands und die zweitgrößte Stadt an der niedersächsischen Küste. Sie befindet sich in einer ökologisch und touristisch attraktiven Region und hat auch als Wirtschaftsstandort...
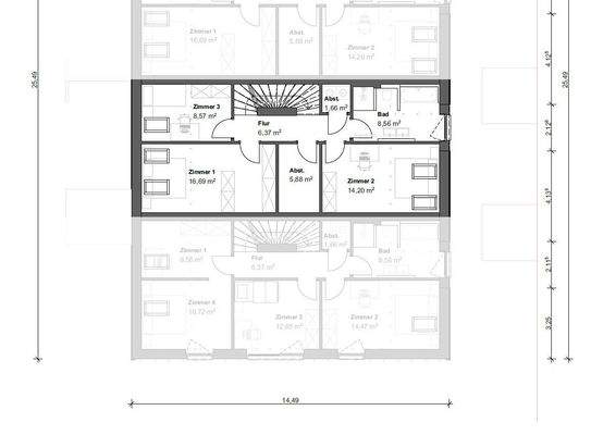
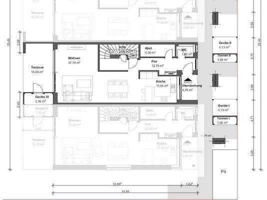
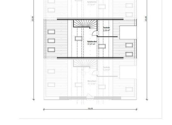
Das Haus
Kategorie
Reihenmittelhaus
Baujahr
2023
Derzeitige Nutzung
vermietet
Energie & Heizung
Warum sehe ich diese Anzeige? – Du siehst diese Anzeige basierend auf Ihrer Navigation auf unserer Website und den Suchkriterien, die du verwendet hast.
Energieausweistyp
Bedarfsausweis
Gebäudetyp
Wohngebäude
Baujahr laut Energieausweis
2022
Wesentliche Energieträger
Elektroenergie
Gültigkeit
10.06.2022 bis 10.06.2032
Effizienzklasse
A+
Endenergiebedarf
12,00 kWh/(m²·a)
Weitere Energiedaten
Haustyp
Massivhaus
Energieträger
Elektro
Heizungsart
Fußbodenheizung, Luft-/Wasser-Wärmepumpe
Details
Objektbeschreibung
Willkommen im Wohnquartier am Steinweg! Dieses neuwertige Reihenmittelhaus ist der ideale Lebensmittelpunkt für die junge Familie. Hier erwartet Sie nicht nur ein lebenswertes Eigenheim, sondern auch die Möglichkeit, umweltbewusst und zukunftsorientiert zu wohnen. Perfekt als Kapitalanlage bringt die aktuelle Vermietung...
Ausstattung
Individuelle Ausstattungsmerkmale:
- Glasfaseranschluss
- PV-Anlage inkl. Stromspeicher
Weitere Informationen
Sonstiges
Bitte nutzen Sie das entsprechende Kontaktformular, damit wir Ihnen unser ausführliches Exposé zur Verfügung stellen können. Wir bitten um Verständnis, dass wir Informationen zu unseren Objekten nur erteilen, wenn Sie bei Ihrer Anfrage Ihre vollständige Adresse, E-Mail und Telefonnummer angeben. Telefonisch...
Anbieter der Immobilie

Online-ID: 2nakh5k
Referenznummer: 2_2611
Finde Angebote wie dieses
Hier geht es zu unserem Impressum, den Allgemeinen Geschäftsbedingungen, den Hinweisen zum Datenschutz und nutzungsbasierter Online-Werbung.