
IMMOTAS GmbH & Co. KG
Herr Brandon Dominguez
004 ···
Nr. anzeigenPreise & Kosten
Provision für Käufer
3,57 % inkl. MwSt.
Lage
Die Immobilie befindet sich in Bobenheim-Roxheim, einer attraktiven Gemeinde im Rhein-Pfalz-Kreis. Die Lage zeichnet sich durch eine gelungene Verbindung aus ruhigem Wohnen und guter infrastruktureller Anbindung aus. Die Friedrich-Ebert-Straße ist eine gewachsene Wohnstraße mit überwiegend wohnbaulicher Nutzung, eingebettet...
Die Wohnung
Wohnanlage
Energie & Heizung
Warum sehe ich diese Anzeige? – Du siehst diese Anzeige basierend auf Ihrer Navigation auf unserer Website und den Suchkriterien, die du verwendet hast.
Energieausweistyp
Verbrauchsausweis
Gebäudetyp
Wohngebäude
Baujahr laut Energieausweis
1900
Wesentliche Energieträger
GAS
Gültigkeit
bis 27.03.2028
Effizienzklasse
C
Endenergieverbrauch
78,00 kWh/(m²·a)
Weitere Energiedaten
Energieträger
Gas
Heizungsart
Zentralheizung
Details
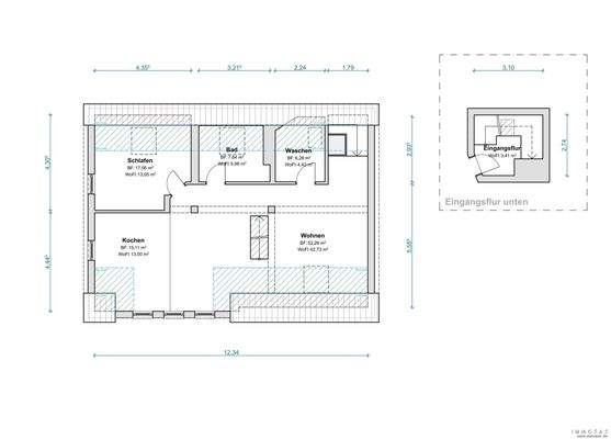
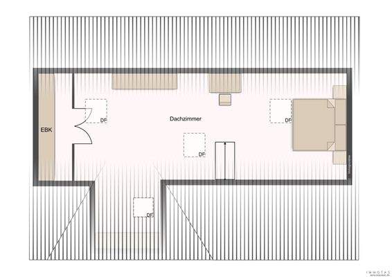
Objektbeschreibung
Die angebotene Eigentumswohnung befindet sich in einem Mehrfamilienhaus aus dem Baujahr ca. 1900 in Bobenheim-Roxheim, Ortsteil Roxheim. Das Gebäude wurde in zweigeschossiger Massivbauweise errichtet, ist vollständig unterkellert und verfügt über ein ausgebautes Dachgeschoss sowie einen ausgebauten Spitzboden, die zu...
Ausstattung
1900 Baujahr Mehrfamilienhaus mit 29 Wohneinheiten in gemeinschaftlicher Verwaltung
zweigeschossige Massivbauweise
komplett unterkellert
Dachgeschoss und Spitzboden zu Wohnzwecken ausgebaut
3-ZKB im Dachgeschoss und Spitzboden
Gas-Zentralheizung (muss erneuert werden)
Fenster Kunststoff und Holz 2fach...
Preisinformation
1 Garagenstellplatz
Weitere Informationen
Sonstiges
Es liegt ein Energieverbrauchsausweis vor.
Dieser ist gültig bis 27.3.2028.
Endenergieverbrauch beträgt 78.00 kwh/(m²*a).
Wesentlicher Energieträger der Heizung ist Gas.
Das Baujahr des Objekts lt. Energieausweis ist 1900.
Die Energieeffizienzklasse ist C.
Wenn Sie Interesse an diesem Objekt...
Anbieter der Immobilie
Online-ID: 2nag35p
Referenznummer: SP-25-KGBD-381
Finde Angebote wie dieses
Hier geht es zu unserem Impressum, den Allgemeinen Geschäftsbedingungen, den Hinweisen zum Datenschutz und nutzungsbasierter Online-Werbung.