
Ranck-Wellingerhoff Immobilien
Herr Jean Marcus Ranck-Wellingerhoff
004 ···
Nr. anzeigenPreise & Kosten
Provision für Käufer
provisionsfrei
Lage
Mitten im Zentrum von Wyk und nur wenige Gehminuten vom Strand entfernt liegen diese traumhaften Doppelhaushälften auf einem rund 470 m² großen Grundstück im Herzen von Wyk. Hier finden Sie die perfekte Balance zwischen Aktivität und Erholung: Kulinarische und kulturelle Highlights erreichen Sie bequem zu Fuß, und die grüne...
Das Haus
Kategorie
Doppelhaushälfte
Baujahr
2025
Energie & Heizung
Warum sehe ich diese Anzeige? – Du siehst diese Anzeige basierend auf Ihrer Navigation auf unserer Website und den Suchkriterien, die du verwendet hast.
Weitere Energiedaten
Energieträger
Erdwärme
Details
Objektbeschreibung
-Nur noch 3 Einheiten verfügbar, 2x für die Ferienvermietung
Auf dem ehemaligen Gelände der Pension Ruh-Ut entstehen drei moderne Doppelhäuser in massiver Bauweise.
Die stilvollen Doppelhaushälften vereinen eine zentrale Lage mit angenehmer Ruhe - mitten im Herzen von Wyk auf Föhr. Jedes Haus überzeugt durch eine...
Weitere Informationen
Stichworte
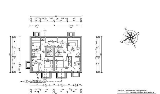
Gesamtfläche: 102,00 m², Anzahl der Schlafzimmer: 3, Anzahl der Badezimmer: 3, Anzahl der separaten WCs: 1, Anzahl Terrassen: 1, 2 Etagen
Anbieter der Immobilie
Ranck-Wellingerhoff Immobilien
Große Straße 31, 25938 Wyk auf Föhr
Online-ID: 2nafx57
Referenznummer: RWI-Föhr-289
Finde Angebote wie dieses
Hier geht es zu unserem Impressum, den Allgemeinen Geschäftsbedingungen, den Hinweisen zum Datenschutz und nutzungsbasierter Online-Werbung.