
LUTTER Immobilien Unternehmensgesellschaft mbH
Herr Mathias Stein
+49 ···
Nr. anzeigenPreise & Kosten
Provision für Käufer
3,57 % vom Kaufpreis inkl. MwSt.
Lage
Die Wohnung befindet sich in einem im Jahre 2015 neu erstellen Mehrfamilienhaus (KfW 55), auf der begehrten Rostocker Holzhalbinsel. Diese charmante Lage bietet eine perfekte Mischung aus Innenstadtnähe und Naturverbundenheit.
Genießen Sie die Ruhe und Idylle der Halbinsel, während Sie gleichzeitig die...
Die Wohnung
Wohnungslage
3. Geschoss
Bezug
sofort
Wohnanlage
Energie & Heizung
Warum sehe ich diese Anzeige? – Du siehst diese Anzeige basierend auf Ihrer Navigation auf unserer Website und den Suchkriterien, die du verwendet hast.
Energieausweistyp
Verbrauchsausweis
Gebäudetyp
Wohngebäude
Wesentliche Energieträger
Fernwärme
Gültigkeit
10.07.2025 bis 10.07.2035
Effizienzklasse
B
Endenergieverbrauch
66,00 kWh/(m²·a)
Weitere Energiedaten
Energieträger
Fernwärme
Details
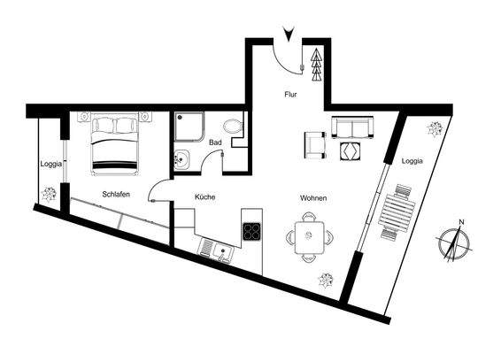
Ausstattung
- die Wohnung liegt im 3. Obergeschoss des Hauses
- das Haus wurde im Jahre 2015 nach den Anforderungen KfW 55 erstellt
- große Loggia mit teilweisen Blick auf die Warnow
- zweite Loggia mit Zugang vom Schlafzimmer
- Fußbodenheizung in allen Räumen
- Bad mit Komfortdusche und Handtuchheizkörper
- im Wohn-...
Weitere Informationen
Sonstiges
Besuchen Sie auch gerne unsere Homepage.
www.LUTTER.net
Wir freuen uns auf Ihr Feedback - Ihr LUTTER Immobilien-Team
Stichworte
Gesamtfläche: 52,00 m², Anzahl Balkone: 1, Bundesland: Mecklenburg-Vorpommern
Anbieter der Immobilie
LUTTER Immobilien Unternehmensgesellschaft mbH
Kröpeliner Straße 57, 18055 Rostock
Online-ID: 2nafw5v
Referenznummer: 8166
Finde Angebote wie dieses
Hier geht es zu unserem Impressum, den Allgemeinen Geschäftsbedingungen, den Hinweisen zum Datenschutz und nutzungsbasierter Online-Werbung.