
Immobilien Gesellschaft mbH der Frankfurter Volksbank Rhein/Main
Herr Gerhard Steinbacher
004 ···
Nr. anzeigenPreise & Kosten
Provision für Käufer
3,57% inkl. MwSt.
Wir haben einen provisionspflichtigen Maklervertrag mit dem Verkäufer in gleicher Höhe abgeschlossen.
Lage
Im Hintertaunus gelegen und doch so nah zum Rest der Welt - so kann man Neu-Anspach sehen. Nur auf kurzem Weg über die Saalburg, vorbei am alten Römerkastell nach Bad Homburg, erreicht man nach ca. 35 Kilometern Fahrt Frankfurt. Hier leben viele junge Paare, Familien und Senioren, die genau das und gleichzeitig die Nähe zu...
Das Haus
Kategorie
Einfamilienhaus
Baujahr
1959
Energie & Heizung
Warum sehe ich diese Anzeige? – Du siehst diese Anzeige basierend auf Ihrer Navigation auf unserer Website und den Suchkriterien, die du verwendet hast.
Energieausweistyp
Bedarfsausweis
Gebäudetyp
Wohngebäude
Baujahr laut Energieausweis
1959
Wesentliche Energieträger
GAS
Gültigkeit
bis 26.02.2036
Effizienzklasse
E
Endenergiebedarf
152,60 kWh/(m²·a)
Weitere Energiedaten
Energieträger
Gas
Heizungsart
Zentralheizung
Details
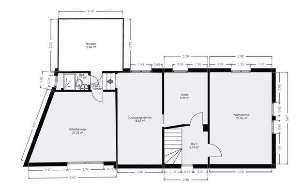
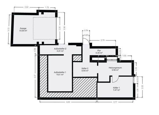
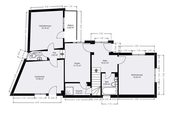
Objektbeschreibung
Flexibel nutzbares Einfamilienhaus mit Einliegerwohnung, Dachterrasse und kleinem Garten! Diese interessante Immobilie bietet Ihnen vielfältige Nutzungsmöglichkeiten: Ob als großzügiges Einfamilienhaus oder als Wohnhaus mit separater 2-Zimmer-Einliegerwohnung - hier sind unterschiedliche Lebenskonzepte...
Ausstattung
Die Fassade des Fachwerkhauses mit massivem Anbau hat 2013 einen Vollwärmeschutz bekommen. Das Haus wurde in 2013-2014 Kernsaniert inkl. Elektrik, Dach und Heizung. Die Kunststoff-Isolierglasfenster wurden in 2004 eingebaut.
Diese Immobilie überzeugt durch ihre flexible Raumaufteilung, mehrere Außenbereiche (Garten...
Weitere Informationen
Sonstiges
Gerne stehen wir Ihnen für ein Beratungs- und Besichtigungstermin zur Verfügung.
Sie möchten selbst eine Immobilie verkaufen?
Wir ermitteln einen seriösen und marktgerechten Wert Ihrer Immobilie. Mit einem individuell für Sie abgestimmten Vermarktungsplan optimieren wir die Verkaufschancen. Als...
Anbieter der Immobilie
Immobilien Gesellschaft mbH der Frankfurter Volksbank Rhein/Main
Seligenstädter Str. 52, 63179 Obertshausen
Online-ID: 2naff5u
Referenznummer: 12408
Finde Angebote wie dieses
Hier geht es zu unserem Impressum, den Allgemeinen Geschäftsbedingungen, den Hinweisen zum Datenschutz und nutzungsbasierter Online-Werbung.