

Amann Immobilien GmbH & Co. KG
Herr Nicolas Amann
075 ···
Nr. anzeigenPreise & Kosten
Provision für Käufer
Provisionsfrei
Lage
Die Wohnung liegt zentrumsnah in der beliebten Ravensburger Südstadt, einem gewachsenen Wohngebiet mit hervorragender Infrastruktur. Einkaufsmöglichkeiten, Kitas, Schulen, Ärzte und Freizeitangebote sind bequem zu Fuß oder mit dem Fahrrad erreichbar. Die historische Ravensburger Altstadt mit ihren Geschäften, Cafés und...
Die Wohnung
Wohnungslage
1. Geschoss
Bezug
sofort
Derzeitige Nutzung
vermietet
Wohnanlage
Energie & Heizung
Warum sehe ich diese Anzeige? – Du siehst diese Anzeige basierend auf Ihrer Navigation auf unserer Website und den Suchkriterien, die du verwendet hast.
Energieausweistyp
Bedarfsausweis
Gebäudetyp
Wohngebäude
Wesentliche Energieträger
Gas
Gültigkeit
05.08.2016 bis 04.08.2026
Effizienzklasse
A
Endenergiebedarf
44,10 kWh/(m²·a)
Weitere Energiedaten
Energieträger
Gas
Heizungsart
Zentralheizung
Details
Objektbeschreibung
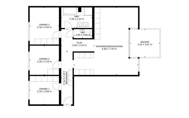
Diese moderne 4-Zimmer-Wohnung im 1. Obergeschoss eines gepflegten Mehrfamilienhauses aus dem Baujahr 2015 überzeugt durch ihren zeitgemäßen Wohnkomfort, einen durchdachten Grundriss und eine hochwertige Ausstattung. Sie befindet sich in der Ravensburger Südstadt in zentrumsnaher, begehrter Wohnlage und bietet ideale...
Ausstattung
- Böden in den Zimmern mit Parkett
- Bad gefliest
- Fußbodenheizung
- elektr. Jalousien
- 3-fach verglaste Fenster
- Baujahr 2015
- Kellerabteil
- 1 Bad sowie sep. Gäste-WC
- Hebeschiebetüre schwellenfrei auf die Terrasse
- Balkon
- 1 TG Stellplatz (zzgl. 25.000 EUR Kaufpreis)
- Verkauf...
Preisinformation
1 Tiefgaragenstellplatz, Kaufpreis: 25.000,00 EUR
Weitere Informationen
Sonstiges
Der Kaufpreis gesamt beträgt:
515.000 EUR Wohnung
25.000 EUR TG-Stellplatz
5.000 EUR Einbauküche
Gesamt: 545.000 EUR
Die Wohnfläche laut Aufteilungsplänen beträgt ca. 97,6 qm (Balkon zu 50% gerechnet).
Die Wohnung ist bezugsfrei zum 01.04.2026.
HINWEIS: Aus Rücksicht auf die...
Anbieter der Immobilie

Online-ID: 2nafa5k
Referenznummer: 4839988
Finde Angebote wie dieses
Hier geht es zu unserem Impressum, den Allgemeinen Geschäftsbedingungen, den Hinweisen zum Datenschutz und nutzungsbasierter Online-Werbung.