

CBRE GmbH
Herr Timo Steinbach
+49 ···
Nr. anzeigenPreise & Kosten
Provision für Mieter
provisionsfrei
Warum sehe ich diese Anzeige? – Du siehst diese Anzeige basierend auf Ihrer Navigation auf unserer Website und den Suchkriterien, die du verwendet hast.
Lage
Die Büromarktzone Porz / Flughafen erstreckt sich von der A 4 südlich entlang den Autobahnen A 559 und A 59 südlich bis zur Stadtgrenze. Sie umfasst das gesamte Porzer Stadtgebiet und die Gewerbegebiete Westhoven, Gremberghoven, Wahn und den Flughafen Köln-Bonn. Traditionell haben sich hier Logistikunternehmen und...
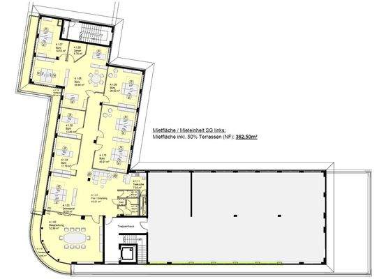
Büro-/Praxisfläche
Kategorie
Bürofläche
Baujahr
2002
Bezug
kurzfristig
Geschoss
Erdgeschoss
Energie & Heizung
Warum sehe ich diese Anzeige? – Du siehst diese Anzeige basierend auf Ihrer Navigation auf unserer Website und den Suchkriterien, die du verwendet hast.
Wärme
Strom
Energieausweistyp
Verbrauchsausweis
Gebäudetyp
Nicht-Wohngebäude
Wesentliche Energieträger
GAS
Gültigkeit
seit 25.08.2019
Endenergieverbrauch (Wärme)
107,90 kWh/(m²·a)
Endenergieverbrauch (Strom)
20,40 kWh/(m²·a)
Details
Ausstattung
BELÜFTUNG/KLIMATISIERUNG
Kühlung, öffenbare Fenster
SONNENSCHUTZ
außenliegender, elektrischer Sonnenschutz
BELEUCHTUNG
Deckenleuchten
DECKE
abgehängte Rasterdecke
BODENBELAG
nach Abstimmung
AUFZUG
nicht...
Weitere Informationen
Sonstiges
CBRE Immobiliensuche Büro - https://www.cbre.de/immobiliensuche/buero
AGB - https://www.cbre.de/agb
Anbieter der Immobilie
CBRE GmbH
Hohenzollernring 72, 50672 Köln

Online-ID: 2nach5k
Referenznummer: 61890@13@0@233191
Finde Angebote wie dieses
Hier geht es zu unserem Impressum, den Allgemeinen Geschäftsbedingungen, den Hinweisen zum Datenschutz und nutzungsbasierter Online-Werbung.